The liberty style building, of Lombard influence, dates back to the early years of the last century. The main feature of the project designed by the Italian architects of Okam Studio is a great accuracy in the choice of materials and an extreme sensitivity in their combination. It is a delicate project that of the architects that overlaps with a prestigious building with important and binding distinctive features: walk-through rooms; precious floors in solid oak and wenge bindello laid in Italian herringbone pattern: doors and windows in blown glass with lead binding, grits and cement pastes in marble powder and deco style furnishing objects


The project of Casa G in Bergamo and the importance of giving value to everyday actions by staying significantly in the present, while honoring the past
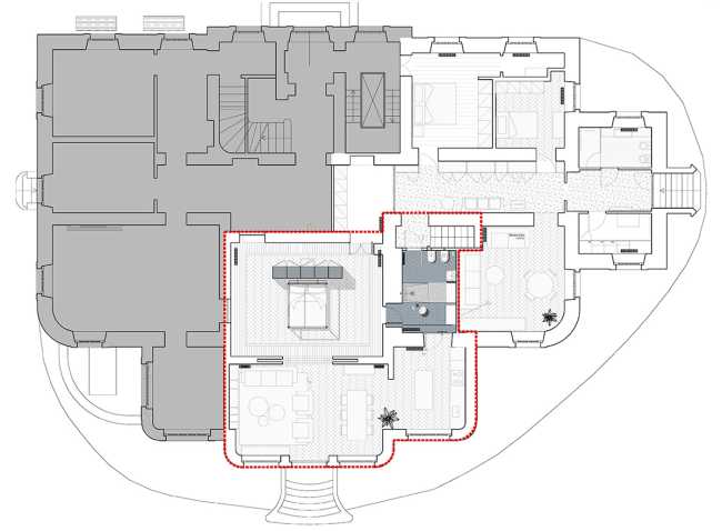
The project for Casa G foresees a general revision of the interior spaces, in particular there was the need by the client to divide the residence into two independent units that could preserve the possibility of future reconnection. The design intervention was deliberately limited to not distort the characteristics of the property in Art Nouveau style while enhancing the peculiarities, inserting furniture elements designed to measure and with the creation of new surfaces
- #Europe>
- #Italy>
- #Furniture>
- #Residence>
- #Apartment>
- #Metal>
- #Wood>
- #Ceramic>
- #Color>
- #Restyling>
- #Interior>
- #Design>
- #Architecture>

Revisiting the use of spaces also conditions the rethinking of the furnishing objects that compose them. This is the case of the new bedroom that inherits the spaces of the old sitting room for conversation, currently not used. The furniture project involves the insertion of two elements in the style of theater, "a backdrop" and "a pedestal".
By "backdrop" is meant the large closet detached from the perimeter wall that becomes the background element of the headboard of the bed through a geometric motif (St. Andrew's cross) repeated on the panels, which synthesizes in an abstract way some decorations of the old art deco furniture of the time. The doors are accessed from the back of the room, creating a hidden walk-in closet, separated from the bed area.

This piece of furniture becomes a present element that is softened in its grandeur by the motherly beveled shape of the room. The ice grey satin lacquered finish further emphasizes its presence in the room while triggering a line of dialogue between past and present.
The closet plays the role of background for the second element inserted, the pedestal, a canopy bed made of white powder coated iron tube. A frame that draws a cubic volume in the large space and frames the antique chandelier made of blown glass and cast iron, weaving a dialogue with the history that is not only made of precious pieces of furniture but also of memories that run through the generations that have lived inside these walls

It is precisely in this dialogue that is provided for the inclusion of other objects and elements rich in history and memories, the piano, the circular mahogany table, the white cabinet in rustic art and a theater bench.
Objects dear to the client that mediate and measure the inclusion of new furniture elements.
The new bathroom, directly connected to the new bedroom, the kitchen and a stairwell that connects to the laundry room in the basement, is conceived as a single space defined as a room

In order to recall the style of the building, hexagonal opaque cement tiles are chosen for the flooring of the bathroom and the hall, finished in waxed Prussian blue. Each element designed in the bathroom has been made to measure and conceived with the aim of creating a space that is not lacking in luminosity even though it has no windows. The transparencies, the glass and the multiple roughness of the materials give an ethereal and volatile touch to the rooms, taking on the task of being part of the history of more than a century in this house. In fact, it is the choice of marble, cement and their combination to ensure a historical reminiscence of the elements of the time, while interacting with more recent styles and contemporary spatial use

Gallery
Photo credits
Top image, content and gallery images: Michele Galizzi















