L’immobile in stile liberty, d’influenza lombarda, risale ai primi anni del secolo scorso. Caratteristica principale del progetto degli architetti italiani di Okam Studio è quella di una grande cura nella scelta dei materiali e un estrema sensibilità nel loro accostamento. E’ un progetto delicato quello degli architetti che si sovrappone ad un immobile di pregio con caratteristiche distintive importanti e vincolanti: stanze passanti; pavimenti preziosi in rovere massello e bindello in wengé posati a lisca italiana; porte e serramenti in vetro soffiato con legatura a piombo, graniglie e paste cementizie in polvere di marmo e oggetti di arredo in stile decò


Il progetto di Casa G a Bergamo e il dare valore alle azioni quotidiane permanendo significativamente nel presente, onorando il passato
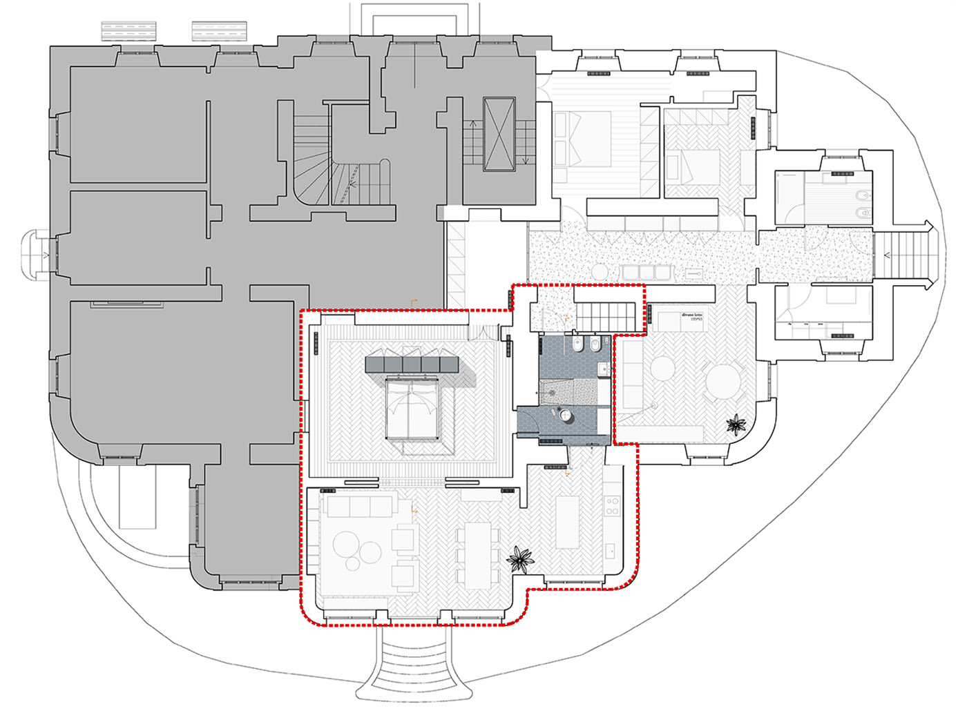
Il progetto per casa G prevede una revisione generale degli spazi interni, in particolare vi era l’esigenza da parte della Committenza di suddividere la residenza in due unità immobiliari indipendenti che potessero mantenere la possibilità di ricollegamento futuro. L’intervento progettuale si è volutamente limitato a non stravolgere le caratteristiche dell’immobile in stile liberty valorizzandone le peculiarità, inserendo elementi d’arredo disegnati su misura e con la realizzazione di nuove superfici
- #Europa>
- #Italia>
- #Arredo>
- #Residenza>
- #Appartamento>
- #Metallo>
- #Legno>
- #Ceramica>
- #Colore>
- #Restyling>
- #Interior>
- #Design>
- #Architettura>

Rivisitare l’uso degli spazi condiziona anche il ripensare gli oggetti di arredo che li compongono. È il caso della nuova camera da letto che eredita gli spazi del vecchio salotto da conversazione attualmente poco utilizzato. Il progetto di arredo prevede l’inserimento di due elementi a mò di teatro, “un fondale” e “un piedistallo”.
Per “fondale” viene inteso il capiente armadio staccato dalla parete perimetrale che diventa l’elemento di sfondo della testata del letto mediante un motivo geometrico (a croce di S.Andrea) ripetuto sui pannelli, che sintetizza in maniera astratta alcune decorazioni dei vecchi mobili art decò dell’epoca. L’accesso alle ante avviene dal fondo della stanza, ricavando una cabina armadio nascosta, separata dalla zona letto

Questo oggetto di arredo diventa un elemento presente che viene ammorbidito nella sua grandezza dalla materna forma smussata della stanza. La laccatura satinata di colore grigio ghiaccio enfatizza ulteriormente la sua presenza nella stanza seppur innescando una linea di dialogo tra passato e presente.
L’armadio gioca il ruolo di sfondo per il secondo elemento inserito, il piedistallo, un letto a baldacchino fatto in tubolare di ferro verniciato a polvere di colore bianco. Un telaio che disegna un volume cubico nel grande spazio e incornicia l’antico lampadario in vetro soffiato e ferro battuto, intrecciando un dialogo con la storia che non è solo fatta di preziosi pezzi di arredo ma anche di ricordi che attraversano le generazioni che hanno vissuto queste mura

E’ proprio in questo dialogo che viene previsto l’inserimento di altri oggetti ed elementi ricchi di storia e ricordi, il pianoforte, il tavolo circolare in mogano l’armadio bianco in arte povera e una panca da teatro.
Oggetti cari alla committenza che mediano e misurano l’inserimento dei nuovi elementi di arredo.
Il nuovo bagno, collegato direttamente alla nuova camera da letto, alla cucina ed ad un vano scala che collega alla lavanderia del piano interrato, viene concepito come un unico spazio definito sala

Per un richiamo allo stile dell’immobile per la pavimentazione di bagno e antibagno vengono scelte delle cementine esagonali opache in tinta unita blu Prussia finite a cera. Ogni elemento disegnato nel bagno è stato fatto su misura e concepito cercando di creare uno spazio non privo di luminosità seppur sprovvisto di finestre, le trasparenze, i vetri e i giochi di rugosità molteplici dei materiali conferiscono un aspetto etereo e volatile agli ambienti, assumendosi il compito di esistere nella storia di più di un secolo di questa casa. È infatti la scelta del marmo, delle cementine e del loro accostamento a garantire una reminiscenza storica degli elementi dell’epoca, seppur dialogando con i linguaggi e un uso spaziale più contemporanei

Gallery
Foto credits
Immagine di copertina, immagini articolo e gallery: Michele Galizzi















