During the first meeting, the clients talked about simplicity and an open view of the woods. They wanted a house that "looked like a house". They preferred a more traditional style, reminiscent of east coast houses by the sea, upright like cedar wood "lighthouses", standing up against storms. These houses seem to rise up to see the horizon. From the outset, the Architects were able to count on a client who was open to the contemporary, even though they wanted to maintain the traditional country style of the first houses in North Hatley. This duality between traditional and modern was our guide throughout the design process


Wooden Villa in Quebec. Design and Traditional country style
The Bourgeois/Lechasseur Architects studio was able to count on a client who was open to the contemporary world for the construction of this residence in North Hatley, Québec, Canada, which is still reminiscent of the traditional local country style
- #America>
- #Canada>
- #Villa>
- #New construction>
- #Wood>
- #Glass>
- #Metal>
- #Plaster>
- #Architectures>
- #Architecture>

When the Bourgeois / Lechasseur Architects visited the property for the first time, they were fascinated by the nearby dense forest and the presence of stags. The property is bordered by a stream and the sound of the water is both relaxing and stimulating. It is located at the end of a mountainous terrain, near the heart of the village of North Hatley. A winding road leads to the property and the project is located in one of its hairpin bends

As you approach, the house, it has a strong presence, but its construction and size give it a traditional appearance. As you wander around the property, the cedar tree seems to take a step back, letting the interior blend in with the exterior. It is almost like a boat that has stopped on the banks of a bend in the river. The house is immersed in the side of the mountain, as if it were sliding, stopping just before the abyss. The main floor literally opens into the forest and the upper level seems to float above it. The projected room, a continuation of the glass wall, reaches the forest, attracting the closest flow

The natural cedar cladding of the KL house and the sheet metal roof are reminiscent of some of the country houses in North Hatley. However, its elongated, aerodynamic shape contrasts subtly with the old, opulent lakeside houses. The house, and its adjoining garage, have a simple, well-designed structure and a sloping roof with a small overhang, but this simplicity is disrupted by its slim shape. The overhanging upper level covers the porch and terrace, protecting the windowed rooms on the main floor from the summer heat

The absence of mouldings underlines the authentic character of natural cedar shingles. The smooth cedar planks in the trimmed area provide a contrast to the structured shingles. In both cases, cedar shingles were chosen due to their orange shade, adding a touch of warmth to the design. Bold, large openings along the joint form the internal scene

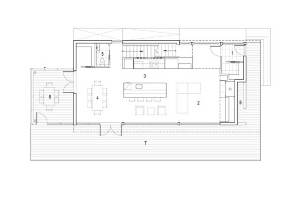
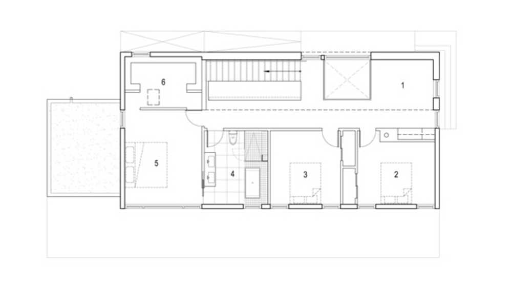
The atrium leads to a luminous transition zone that opens vertically, offering a glimpse of the upper level and its cedar ceiling. The living areas cross an open longitudinal space that offers a constant view of the forest. Dark edges around the windows animate the long facade of the house. This linear movement continues and bends inside to accommodate the living room. A change of shape creates the library and foyer. This darker area contrasts nicely with the white walls and shiny furniture. Wooden floors add a soft quality to the design. The open staircase beckons the occupants to come up. The walls on the upper floor are lined with cedar planks. An office area and a long, low storage area furnish the space. The bedrooms and bathroom are simple and discreet, each offering a partial view of the landscape

In response to customers' wishes, the KL house looks "like a home" but also stands out, in all simplicity, by reinterpreting the first country houses in the region. It also has a friendly maritime atmosphere, far away from the Atlantic


















