Al primo incontro, i clienti hanno parlato di semplicità e di una visione aperta dei boschi. Volevano una casa che "assomigliasse ad una casa". Preferivano uno stile più tradizionale, che ricordasse le case della costa orientale sul mare, in piedi come "fari" di legno di cedro, in piedi contro le tempeste. Queste case sembrano sorgere per vedere l'orizzonte. Fin dall'inizio, gli Architetti hanno potuto contare su una committenza aperta alla contemporaneità, anche se volevano mantenere il tradizionale stile country delle prime case di North Hatley. Questa dualità tra il tradizionale e il moderno è stata la nostra guida per tutto il design


Villa in Legno nel Québec. Design e Traditional country style
Lo studio Bourgeois/Lechasseur Architects ha potuto contare su una committenza aperta alla contemporaneità per la realizzazione di questa residenza a North Hatley, nel Québec, in Canada, che ricorda comunque il tradizionale stile country locale
- #America>
 - #Canada>
 - #Villa>
 - #Nuova costruzione>
 - #Legno>
 - #Vetro>
 - #Metallo>
 - #Intonaco>
 - #Architectures>
 - #Architettura>
 

Quando Bourgeois / Lechasseur Architects visitano la proprietà per la prima volta, sono rimasti affascinati dalla vicinissima e fitta foresta e dalla presenza di cervi. La proprietà è delimitata da un ruscello e il suono dell'acqua è sia rilassante che stimolante. Si trova alla fine di un dominio montuoso, vicino al cuore del villaggio di North Hatley. Una strada tortuosa conduce alla proprietà, e il progetto si trova in una delle sue curve a gomito

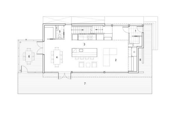
Avvicinandosi, la casa ha una forte presenza, ma la sua costruzione e le sue dimensioni gli conferiscono un aspetto tradizionale. Vagando per la proprietà, il cedro sembra fare un passo indietro, permettendo agli ambienti interni di mescolarsi con l'esterno. È quasi come una barca che si è fermata sulle rive di un'ansa del fiume. La casa è immersa nel fianco della montagna, come se scivolasse, fermandosi appena prima della voragine. Il piano principale si apre letteralmente nella foresta e il livello superiore sembra galleggiare sopra di esso. La stanza proiettata, una continuazione della parete di vetro, raggiunge la foresta, attirando il flusso più vicino

Il rivestimento in cedro naturale della casa KL e il tetto in lamiera ricordano alcune delle case di campagna di North Hatley. Tuttavia, la sua forma allungata e aerodinamica contrasta sottilmente con le vecchie e opulente case sulla riva del lago. La casa, e il suo garage adiacente, hanno una volumetria semplice e ben congegnata e un tetto inclinato con una piccola sporgenza, ma questa semplicità è destabilizzata dalla sottile sagomatura. Il livello superiore a strapiombo copre il portico e il terrazzo, proteggendo le stanze finestrate del piano principale dal caldo estivo

L'assenza di modanature sottolinea il carattere autentico delle scandole di cedro naturale. Le assi lisce di cedro della zona rifilata forniscono un contrasto con le scandole strutturate. In entrambi i casi, le tegole di cedro sono state scelte per la loro tonalità arancione, aggiungendo un tocco di calore al progetto. Grassetto, ampie aperture lungo il raccordo formano lo scenario interno

L'atrio conduce a una zona di transizione luminosa che si apre verticalmente, offrendo uno scorcio del livello superiore e del suo soffitto in cedro. Le aree di vita attraversano uno spazio longitudinale aperto che offre una visione costante della foresta. Bordi scuri attorno alle finestre animano la lunga facciata della casa. Questo movimento lineare continua e si piega all'interno per ospitare il soggiorno. Un cambiamento di forma crea la biblioteca e il foyer. Questa zona più scura contrasta piacevolmente con le pareti bianche e i mobili lucenti. I pavimenti in legno aggiungono una qualità morbida al progetto. La scala aperta invita gli occupanti a salire. Le pareti del piano superiore sono rivestite con doghe di cedro. Una zona ufficio e un magazzino lungo e basso arredano lo spazio. Le camere da letto e il bagno sono semplici e discreti, ognuno dei quali offre una vista parziale del paesaggio

In risposta ai desideri dei clienti, la casa KL sembra "come una casa" ma si distingue anche, in tutta semplicità, reinterpretando le prime case di campagna della regione. Ha anche un'atmosfera marittima amichevole, lontano dall'Atlantico


















