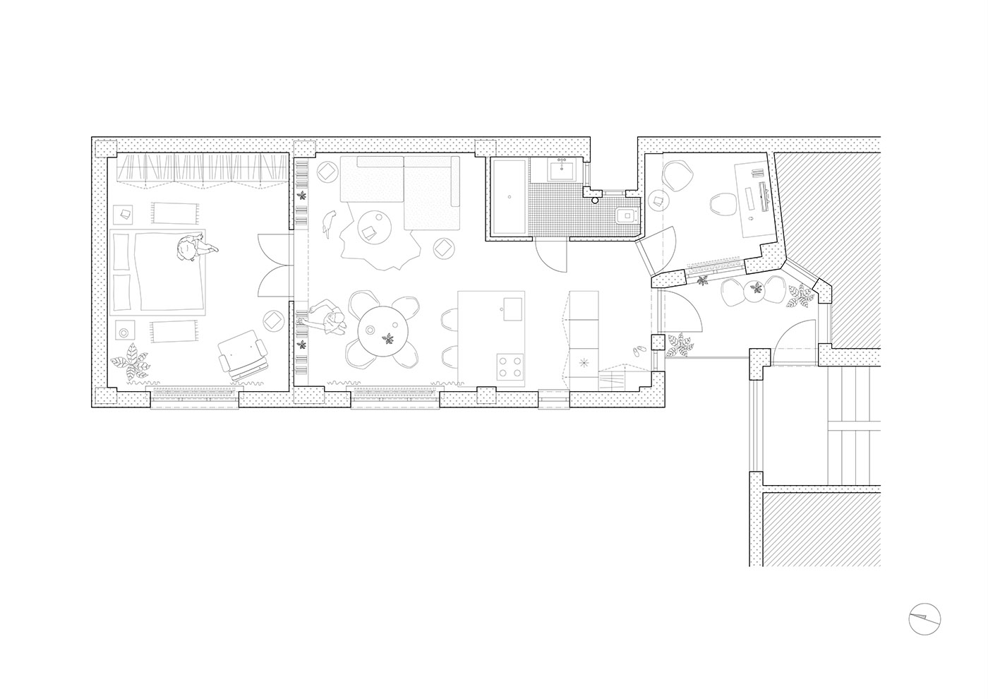
El eje central del pasillo original se extiende en el Apartamento H desde el vestíbulo de entrada a través de la zona de estar principal, y continúa a través de la puerta de cristal de doble apertura hasta el dormitorio principal. El concepto del espacio ha conservado así su carácter de casco antiguo, a pesar de su reducido tamaño y de que no da a la calle, sino al patio común
Renovación del Apartamento H en el Casco Antiguo de Bratislava. Disposición racional y contraste entre el blanco y los colores primarios
El Apartamento H está situado en Medena Street, en un edificio de la década de los 40, en la zona histórica de Bratislava. La vivienda de tres habitaciones carece de los techos altos y de la enfilación axial típicos de los apartamentos circundantes de la Primera República Checoslovaca (1918 - 1938). A pesar de ello, con su disposición racional, el apartamento sigue evocando los mismos conceptos espaciales
- #Europa>
- #Eslovaquia>
- #Arquitectura>
- #Especiales>
- #Muebles>
- #Residencia>
- #Apartamento>
- #Color>
- #Remodelación>
- #Interior>
- #Diseño>
- #Renovacion>

En el proyecto de remodelación de Grau Architects, se amplió la zona de estar central aprovechando el cuarto de limpieza preexistente, que ahora ha dejado espacio para la cocina. Un armario en el techo crea una separación entre la entrada y este nuevo espacio vital. Al pasar por la entrada, se establece una fuerte conexión visual a lo largo del eje central del apartamento
El sólido espacio rojo de la cocina equilibra ópticamente la distribución del apartamento. Al mismo tiempo, hace referencia a las divisiones y puertas que se han eliminado en la nueva distribución. La barra de la cocina se eleva sobre la zona de estar, mientras que la antigua zona de la cocina se ha convertido en un estudio independiente
El interior es predominantemente blanco, en consonancia con el suelo de color claro del vestíbulo. Así pues, el concepto de la paleta de colores se basa en el contraste entre el blanco y un juego de colores primarios brillantes. En la cocina y el baño, destacan los elementos rojos y azules sobre un fondo de baldosas blancas. El mismo principio se repite en el resto del apartamento

Galeria
Créditos Fotográficos
Imagen de portada, imágenes artículo y gallery: Nora & Jakub Caprnka
Diseños: Grau Architects







