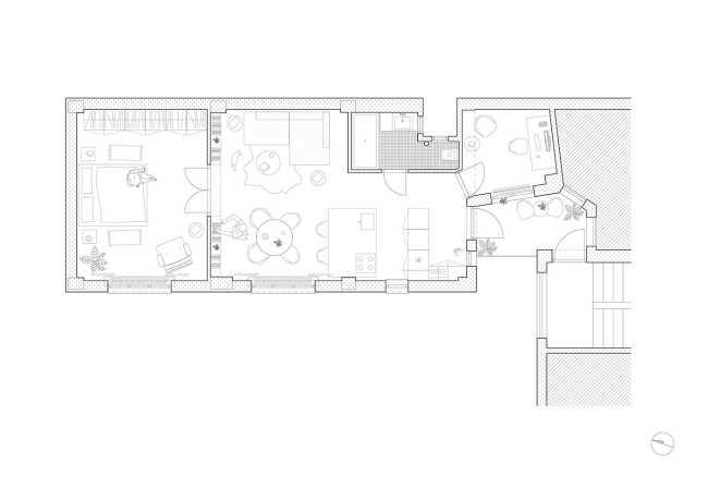
The central axis of the original hallway extends into Apartment H from the entrance through the main living area, and continues through the double-hung glass door to the master bedroom. The living space concept thus retained its Old Town character, despite its small size and overlooking, not the street, but the common courtyard
The renovation of the Apartment H in Bratislava's Old Town. A rational layout and a contrast between the white and the primary colors
Apartment H is located along Medena Street in a 1940s building in the historic part of Bratislava. The three-room dwelling lacks the high ceilings and axial enfilade typical of surrounding apartments dating from the first Czechoslovak Republic (1918 - 1938). Despite this, with its rational layout, the apartment remains evocative of these same spatial principles
- #Europe>
- #Slovakia>
- #Architectures>
- #Focus>
- #Furniture>
- #Residence>
- #Apartment>
- #Color>
- #Restyling>
- #Interior>
- #Design>
- #Renovation>

In Grau Architects' renovation project, the central living area was expanded using the pre-existing cleaning room that now made room for the kitchen. A ceiling cupboard creates a separation between the entrance and this new living space. Passing through the entrance, a strong visual connection is established along the central axis of the apartment
The solid red volume of the kitchen optically balances the layout of the apartment. At the same time it references the partitions and doors that have been erased in the new layout. The kitchen counter dominates the living area while the former kitchen area has been transformed into a separate study
The interior is predominantly white, in keeping with the light-colored floor in the entrance hall. The color palette concept is thus based on the contrast between white and a play of bright primary colors. In the kitchen and bathroom, red and blue elements appear against the background of white tiles. The same principle is repeated in the rest of the apartment

Gallery
Photo credits
Top image, content and gallery images: Nora & Jakub Caprnka
Drawings: Grau Architects







