Los arquitectos de GOKO Studio, encargados del proyecto de reestructuración, comprendieron desde la primera visita al piso que uno de los ejes de la intervención debía ser recuperar la terraza como espacio vital para los nuevos habitantes de la Casa MEQ, conectándola funcional, espacial y visualmente con el interior


Reestructuración total de la Casa MEQ: el cubo azul multifuncional y la reconquista de la terraza
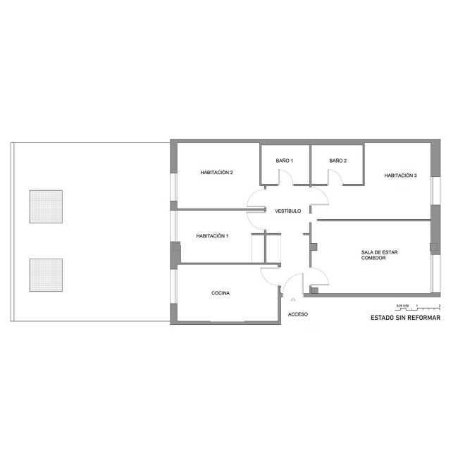
Al igual que Barcelona de antes de las Olimpiadas vivía de espaldas al mar, la Casa MEQ disponía de una impresionante terraza de 50 metros cuadrados, con más de 7 metros de vistas, que ignoraba totalmente: dos pequeñas ventanas en los dormitorios y una puerta de 80 cm en la cocina conectaban interior-exterior
- #Europa>
- #España>
- #Arquitectura>
- #Residencia>
- #Apartamento>
- #Color>
- #Remodelación>
- #Interior>
- #Diseño de interiores>

Para la familia MEQ, las habitaciones, que por el momento podrían ser solamentedos, pero con la posibilidad de añadir una tercera ante la llegada de un nuevo miembro, tienen una función exclusivamente de descanso. Por ello, los arquitectos se permitieron proponer una gran zona de día, en conexión directa con la terraza, unida a la zona de descanso por un cubo azul: limpia, atractiva pero tranquila, que da toda la personalidad a un piso originalmente bastante anónimo

El cubo azul alberga múltiples funciones en su interior: oculta el sistema de aire acondicionado, alberga dos baños, los armarios del dormitorio y un armario multifuncional que da al salón. También sirve como banco donde uno puede sentarse para quitarse los zapatos al volver a entrar en la casa, y da la bienvenida a la familia cuando regresa de su jornada de trabajo y estudio con su suave pero juguetona vibración

Para suavizar la transición entre la terraza interior y la exterior, los arquitectos convierten el suelo de la terraza elevada en el espacio habitable, eliminando los radiadores y sustituyéndolos por rejillas de ventilación en el escalón que crean una barrera contra el frío y desaparecen de la vista. En la terraza, dos grandes claraboyas que iluminaban el aparcamiento de la planta baja obstruían la continuidad del espacio, pero un jardín elevado oculta el defecto y crea un espacio diferenciado para relajarse y tomar el sol de la tarde. El resto del proyecto gira en torno al color, la luz y la madera

Galeria
Créditos Fotográficos
Imagen de portada, imágenes artículo y gallery: LOOKER PHOTOGRAPHY
Diseños: goko studio architects

















