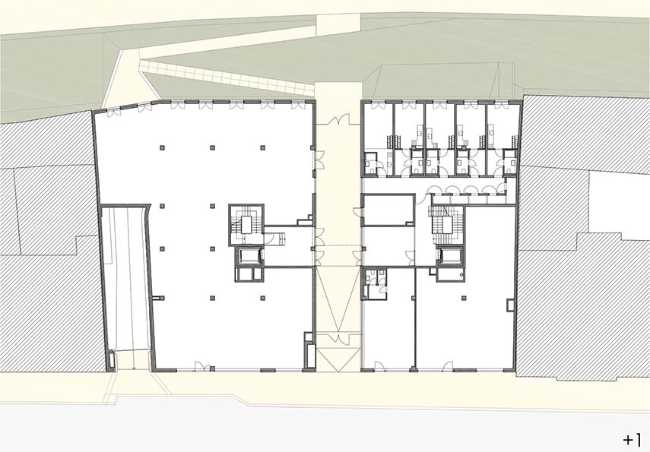
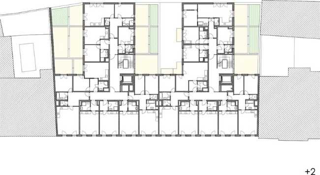
Due volumi quasi identici per un dialogo rispettoso con il contesto
L’edificio residenziale Koněvova progettato da A.LT architekti appartiene a quei progetti di architettura che, in un contesto ben identificato e con un significativo valore storico, si inseriscono attraverso un dialogo rispettoso. Il nuovo volume architettonico ha le dimensioni pari a quelle di due o tre case tipiche del quartiere: perciò gli architetti decidono di realizzare due volumi quasi identici, che differiscono solo nell’uso dei colori























