Visione architettonica
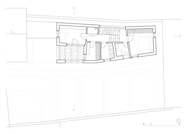
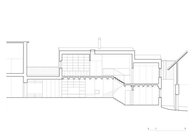
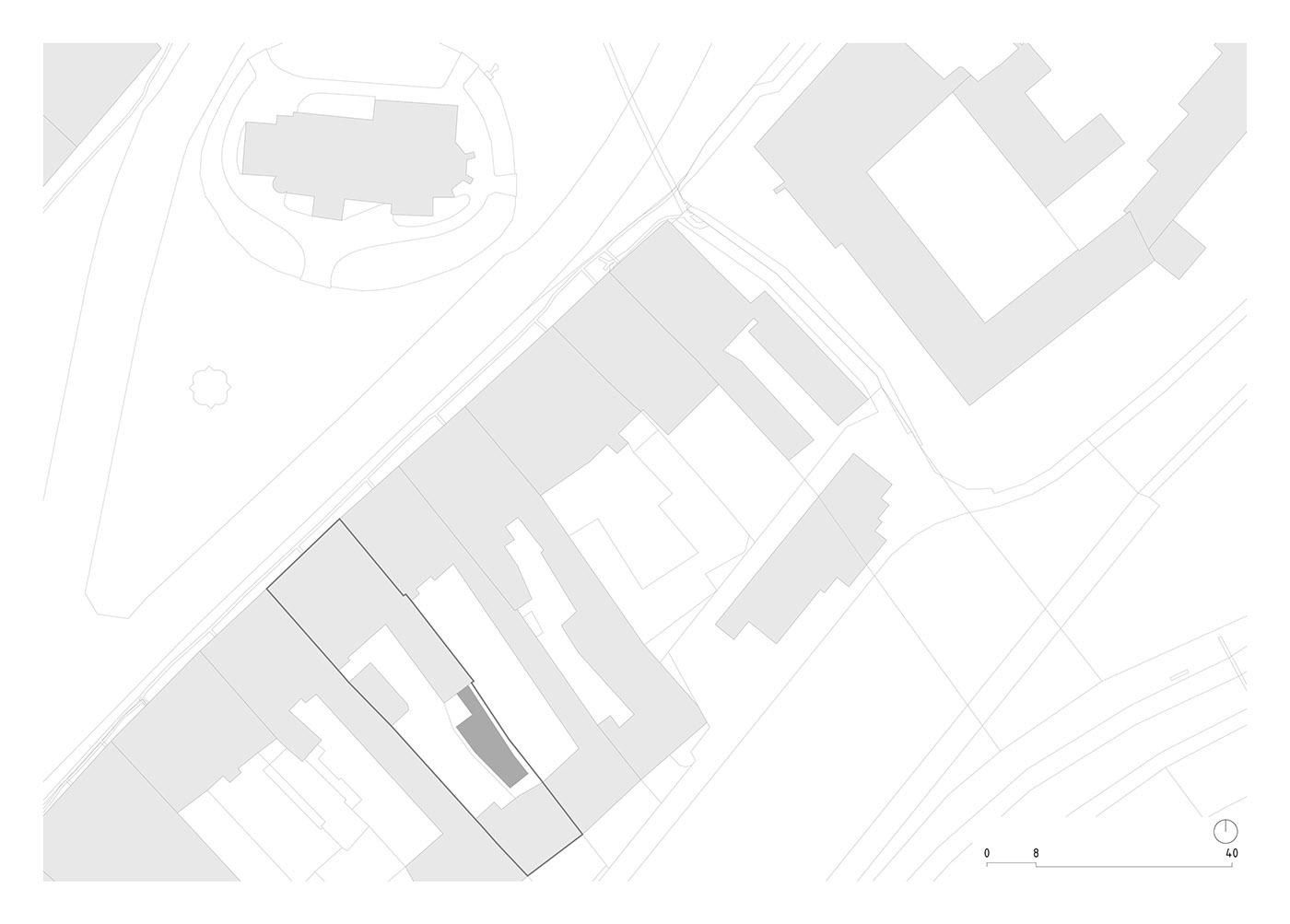
Un aspetto importante del progetto Casa nel Cortile, supervisionato da IGLOO ARCHITEKTI, era quello di preservare e rafforzare lo spirito dell'edificio storico pur fornendo alloggi accessibili conformi agli standard moderni. Un requisito altrettanto importante imposto dall'investitore era la connessione dell'interno con il cortile e il giardino, la creazione di uno spazio vitale all'aperto protetto rivolto a sud























