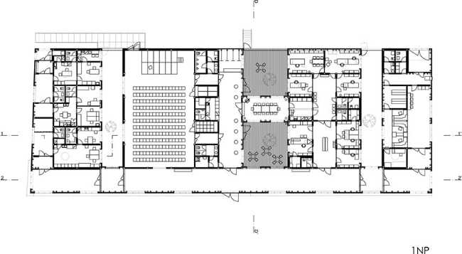
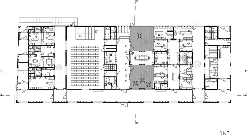
Luce e aria come simboli del pubblico servizio
Progettato da A.LT architekti, l’essenza del design del nuovo Town Hall di Ďáblice è fatta di trasparenza e massima apertura. Gli elementi di luce e aria testimoniano il principio del pubblico servizio: l’edificio vuole essere una scatola astratta e perciò si veste nella sua facciata principale con una fantasia cangiante bianco-argentata e riflettente






















