Il nuovo studio di 17.054 metri quadrati della società di architetti SRG, progettato da loro stessi, si trova nell'ex casa della stampa dell'Oregonian, situata al piano terra dell'edificio storico del 1948 progettato dal noto architetto Pietro Belluschi. Lo spazio libero, privo di barriere architettoniche e pieno di luce ha offerto l'opportunità di esplorare un nuovo concetto di ufficio che potrebbe continuare a evolvere la pratica e la cultura dell'azienda, dimostrando allo stesso tempo l'impegno dello studio per l'eccellenza del design, la sostenibilità e il benessere. Le rotaie originali della gru in acciaio sono state mantenute per riconoscere la funzione e la struttura storica dell'edificio


Ufficio SRG a Portland. Design per la qualità del lavoro, delle relazioni e dell’energia
Il design nel nuovo ufficio SRG a Portland è utilizzato per collegare, senza sforzo, le persone tra loro, migliorare il lavoro dell'azienda e stimolare le risorse creative, incoraggiando interazioni spontanee e rendendo accessibile a tutti la vista dei progetti in essere
- #America>
 - #Stati Uniti>
 - #Architettura>
 - #Uffici>
 - #Interior>
 - #Design>
 - #Architettura>
 

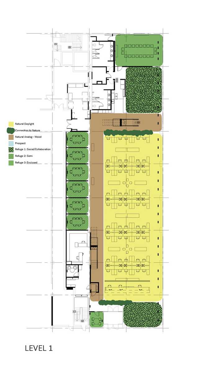
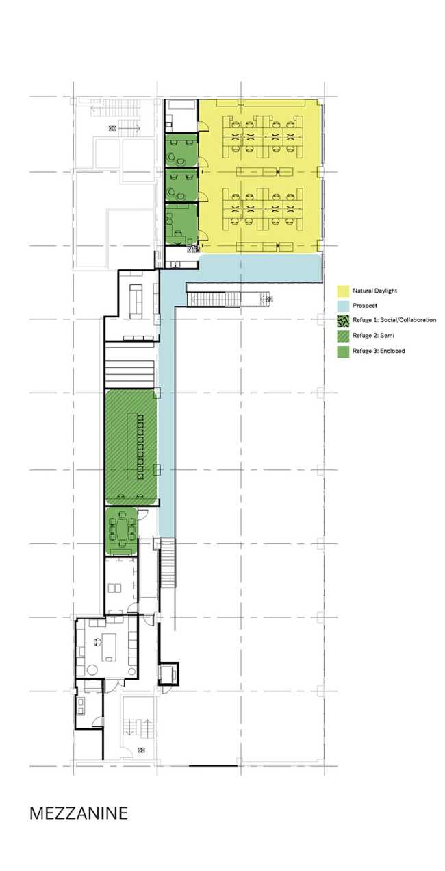
L’ufficio SRG a Portland è fornito di una serie di spazi studiati apposta per incoraggiare la collaborazione, le conversazioni spontanee e la curiosità. Una libreria di materiali aperta nel mezzanino è facilmente visibile e accessibile a tutti. Una zona centrale adibita a cucina, il cuore dello studio, favorisce il cameratismo e funge anche da spazio per riunioni. Le piattaforme di progetto aperte, dove i team mostrano il lavoro in corso, sono aree di incontro e apprendimento attive che ispirano idee e dialogo. Infine, uno spazio dedicato incoraggia l'esplorazione del design e la creatività

Per completare il layout aperto e trasparente, il design offre opzioni per adattarsi a diverse modalità di lavoro utilizzando un mix di posizioni e di densità delle scrivanie, oltre ad aree private per piccoli team o individuali per ritirarsi e concentrarsi quando necessario. Gli spazi di lavoro sul mezzanino si affacciano sul livello principale per soddisfare il personale che desidera spazi più silenziosi, ma ancora collegati

Sulla base della convinzione che "gli edifici sono habitat per le persone", gli spazi si connettono intenzionalmente alla natura. Gli alberi lussureggianti all'esterno delle finestre sovradimensionate completano la già abbondante presenza di piante degli interni; i ventilatori a soffitto imitano le brezze naturali per la variabilità termica e del flusso d'aria; la fila di finestre rivolte a est fornisce luce dinamica e diffusa che si sposta durante il giorno. Il cemento grezzo si fonde con il legno lamellare a strati incrociati (CLT), prodotto in modo sostenibile, del mezzanino, nella cucina e all'ingresso

Il luogo di lavoro esemplifica i valori aziendali di apertura, collaborazione e il modo in cui un ambiente può promuovere l'innovazione e ispirare l'eccellenza. Come architetti guidati dalla passione di costruire spazi migliori per un mondo migliore, lo studio stesso di SRG incarna questi valori

Gallery
Foto credits
Immagine di copertina, immagini articolo e gallery: Christian Columbres Photography

















