Zecc ha realizzato il progetto di base della casa e poi Roel van Norel ha messo a punto il piano di tutta la strada nel più piccolo dettaglio e ha costruito la casa insieme con il committente


Cottage ad Utrecht. Tra artigianalità e raffinatezza
Nella zona rurale a nord di Utrecht è stata realizzata, da una speciale collaborazione tra Zecc e interior designer Roel van Norel, una casa per trascorrere il tempo libero, con una compatta struttura in legno
- #Europa>
- #Paesi Bassi>
- #Nuova costruzione>
- #Baita / Casa Vacanze>
- #Legno>
- #Architectures>
- #Architettura>

La casa ha sostituito una piccola casetta con giardino esistente, che è stata riutilizzata come fondazione, il perimetro esistente è stato il punto di partenza per la costruzione della nuova casa. Il cottage è semplice: un tetto a due falde in pietra di ardesia, un camino e un rivestimento in legno di cedro rosso occidentale

Il casolare si fonde con il paesaggio senza soluzione di continuità con l'uso naturale dei materiali. La redazione del progetto di architettura, di interior design e la sua realizzazione sono stati semplici. Questo ha portato ad un elevato livello di artigianalità

La raffinatezza di questo cottage si trova nel disegno del fronte asimmetrico, nei dettagli e negli interni. La casa è completamente chiusa su un lato con liste verticale sulla facciata. L'altro lato si apre al verde ed è dotato di persiane mobili. In questo modo la luce del sole e la vista può essere diretta. Le stecche orizzontali delle persiane continuano nel rivestimento della casa in modo che quando le persiane sono chiuse la casa rimane un compatto

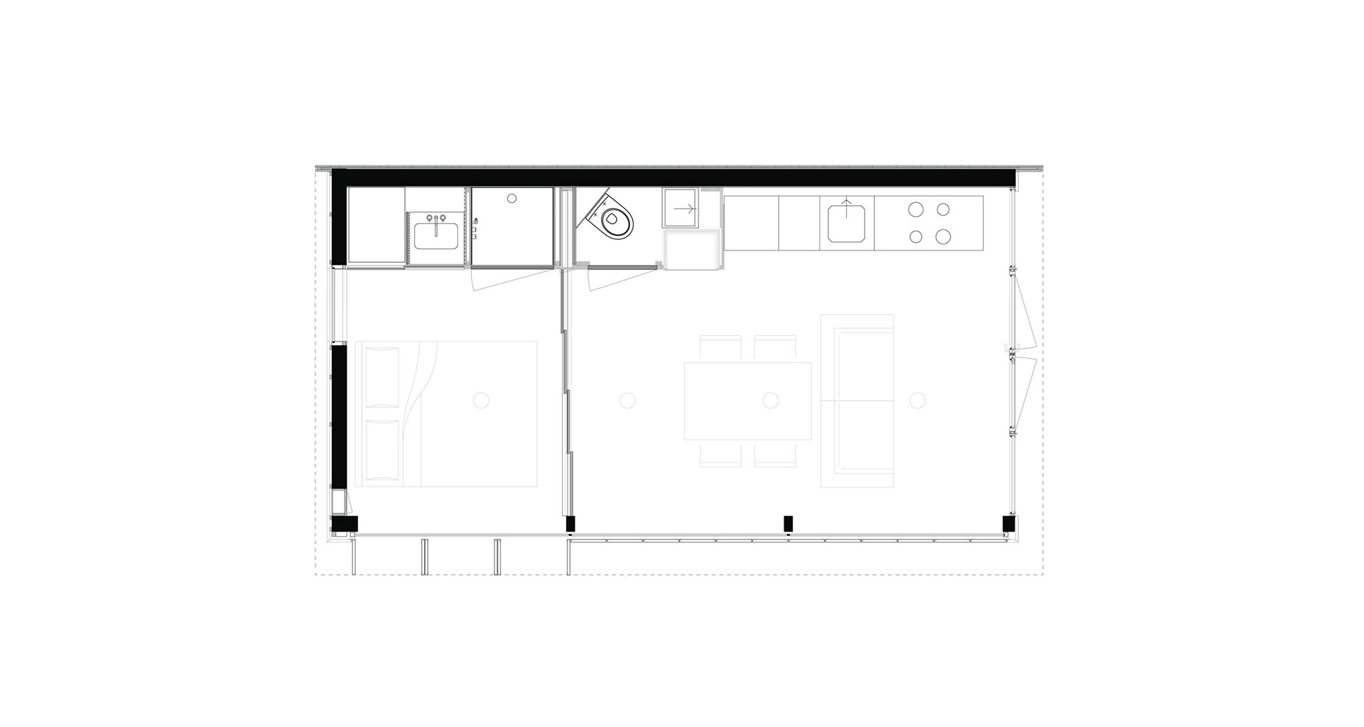
La parte anteriore è completamente trasparente ed ha una facciata robusta in acciaio. Questo lato della casa è rivolto verso il paesaggio. La parte anteriore viene usata come una cucina, come soggiorno e come zona pranzo e nella zona posteriore è collocata la camera da letto. Lo spazio interno può essere separato da pannelli scorrevoli. Sopra la zona notte vi è un piccolo piano rialzato

Sul lato lungo della facciata chiusa vi sono tutti i servizi accuratamente integrati in un muro di rovere: cucina, forno a legna, un WC, la doccia, un lavabo e diversi armadi. Anche il basamento della cucina è progettato come un cassetto ... ogni minimo spazio della casa è stato utilizzato e pensato










