Una metamorfosi che trascende lo spazio
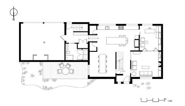
Lo studio canadese Le Borgne Rizk Architecture si occupa del progetto di ristrutturazione di casa Earnscliffe generando una metamorfosi che trascende lo spazio inondandolo di luce e creando angoli di rilassante bellezza che ispira all’armonia familiare. I due livelli dell’edificio diventano un’unità coesa, “sinfonia di luce e spazio”, grazie alla raffinata scala elegantemente sospesa, che è un quadro vivente di dettagli in legno, metallo e vetro, e alla doppia altezza che si apre sul corridoio al piano superiore




















