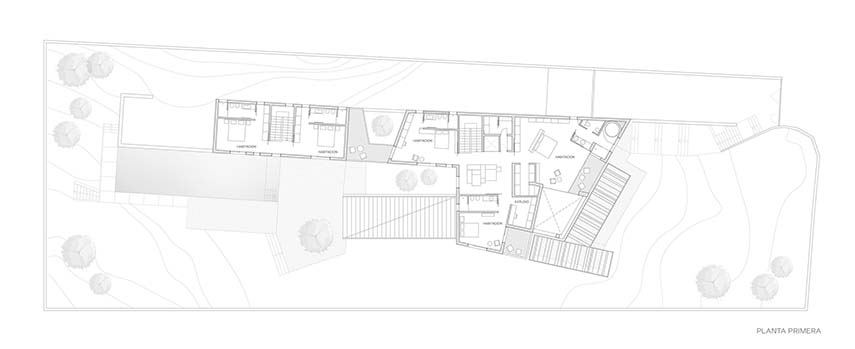
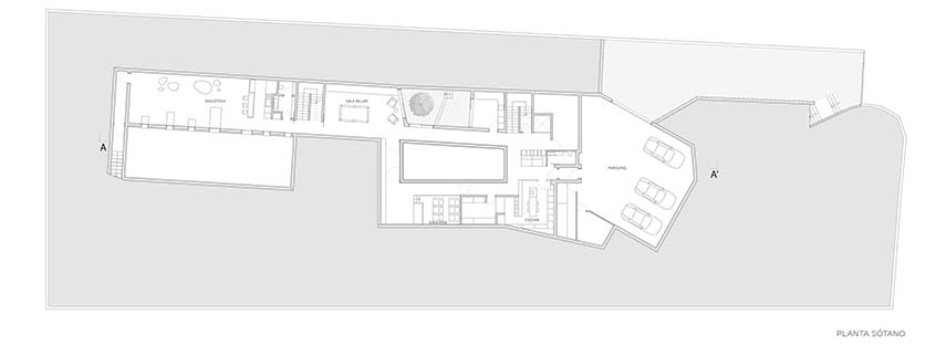
Posizione Spettacolare vista mare
L’esclusiva residenza è situata su di una collina a pochi chilometri da Barcellona e offre una vista spettacolare sul mare. Lo studio di progetti di interior design Enrica Mosciaro ha seguito il progetto esaltando tutte le caratteristiche strutturali della Villa.
























