The shape of the house, the design of which is entrusted to the KLAR firm, is largely predetermined by the fairly strict boundaries of the building part of the lot which is nevertheless of considerable size and is limited by the access road, neighboring properties, and the creek nestled in the forest. Near it stands a small cross with a simple bench, a spot on the plot that remains open to the public and has been part of the Way of the Cross from Nový Jičín to Štramberk for centuries


New construction of a single-family home with in-law suite made of wood intended to be self-built
A family home with an in-law suite for the grandparents, made of wood, sustainable, and self-build at least in part: this was the desire of the developers for their home on the property lot that, sloping gently to the southeast, offers a picturesque view of the surrounding pastures, forests, and houses of the village Rybí,in the Moravian-Silesian region
- #Europe>
 - #Czech Republic>
 - #Architectures>
 - #New construction>
 - #Residence>
 - #Habitation>
 - #Wood>
 - #Architecture>
 

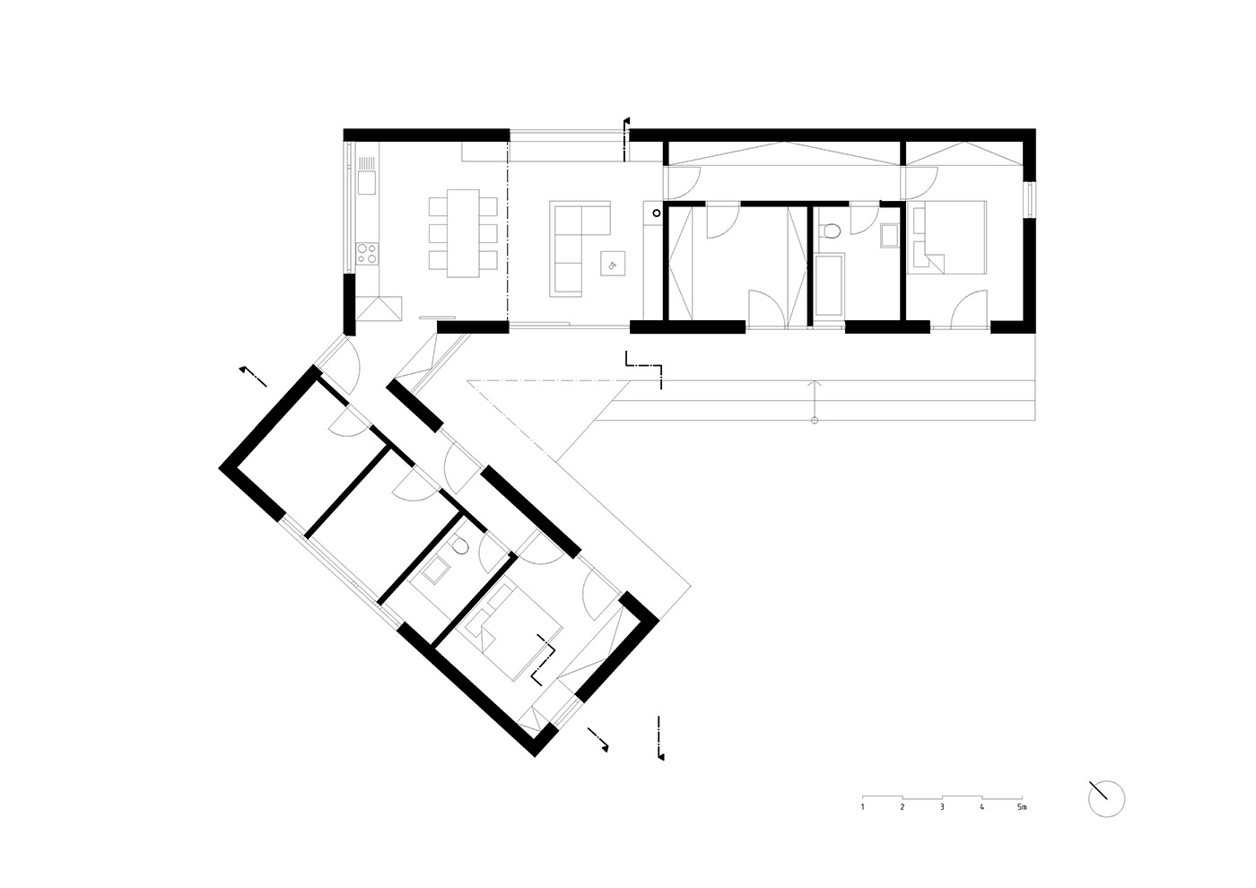
The house designed for four people and an in-law suite for grandparents is a wooden construction consisting of two elongated volumes with sloping roofs joined by a corner. The two-wing solution works well to separate the family home and the future in-law suite. A private south-facing courtyard forms within the corner, protected from the north and overlooking a nearby forest. Shaded by the overhang of the roof, a large terrace stretching across the house connects it with the courtyard, offering endless opportunities to sit, relax, and listen to the sounds of running water, rustling leaves, or the distant hum of village life. The trees growing around the stream provide shade from the hot summer sun, but their bare branches let in enough sunlight to reach the house in winter

The two wings of the house intersect in the vestibule: this area provides an overview of both wings, the courtyard and the deck, acting as a metaphorical entrance sign. From the vestibule, a door on one side leads to the double-height main living area that connects to the family sleeping area, while the other side of the vestibule leads to a corridor to the in-law suite. The corridor runs along the east side of the in-law suite and provides access to the utility room, smaller bathroom, and grandparent's bedroom. It also connects this wing to the deck.
The family wing provides space for others to the open-plan living area, which is extensively connected to the outdoors by glazed surfaces, the children's room, bedroom and main bathroom

The house was erected using the 2-by-4 structural system, mineral wool insulation and structural OSB panel cladding. The dominant interior finishes are 3-ply natural fir solid wood paneling and white drywall. Rooms have oak floors, hallways and bathrooms ceramic tile floors.
The foundations are divided into two sections: the in-law suite has concrete foundations while the family home is raised off the ground on steel stilts. This gives the building a certain lightness, reducing its scale and impact on the ground

Gallery
Photo credits
Top image, content and gallery images: Václav Novák
Drawings: studio KLAR

















