La forma della casa, la cui progettazione è affidata allo studio KLAR, è in gran parte predeterminata dai confini abbastanza stringenti della parte edificabile del lotto il quale presenta comunque dimensioni considerevoli ed è limitato dalla strada di accesso, dalle proprietà limitrofe e dal torrente immerso nella foresta. Vicino ad esso sorge una piccola croce con una semplice panchina, un punto del terreno che rimane aperto al pubblico e che da secoli fa parte della Via Crucis da Nový Jičín a Štramberk


Nuova costruzione di una casa unifamiliare con suite in-law in legno da auto-costruire
Una casa per la famiglia con una suite in-law per i nonni, in legno, sostenibile e auto-costruibile almeno in parte: questo il desiderio dei committenti per la loro abitazione nel lotto di proprietà che, digradando dolcemente verso sud-est, offre una vista pittoresca sui pascoli circostanti, sui boschi e le case del villaggio Rybí,nella regione della Moravia-Slesia
- #Europa>
- #Repubblica Ceca>
- #Architettura>
- #Nuova costruzione>
- #Residenza>
- #Abitazione>
- #Legno>
- #Architettura>

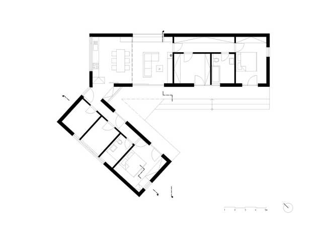
La casa pensata per quattro persone e una suite in-law per i nonni è una costruzione in legno formata da due volumi allungati con tetti spioventi uniti tra loro da un angolo. La soluzione a due ali funziona bene per separare la casa di famiglia e la futura suite in-law. Un cortile privato esposto a sud si forma all'interno dell'angolo, protetto da nord e affacciato su una vicina foresta. Ombreggiata dalla sporgenza del tetto, un'ampia terrazza che si estende lungo tutta la casa, la collega con il cortile, offrendo infinite possibilità di sedersi, rilassarsi e ascoltare i suoni dell'acqua corrente, delle foglie fruscianti o il ronzio lontano della vita del villaggio. Gli alberi che crescono intorno al ruscello forniscono ombra dal caldo sole estivo, ma i loro rami nudi lasciano entrare abbastanza luce solare per raggiungere la casa in inverno

Le due ali della casa si intersecano nel vestibolo: quest’area offre una panoramica di entrambe le ali, del cortile e del ponte, agendo come un cartello d'ingresso metaforico. Dal vestibolo, da un lato una porta conduce alla zona giorno principale a doppia altezza che collega alla zona notte della famiglia, mentre dall'altro lato del vestibolo si accede ad un corridoio per la suite in-law. Il corridoio corre lungo il lato est della suite in-law e fornisce l'accesso al locale tecnico, al bagno più piccolo e alla camera da letto dei nonni. Collega anche questa ala al ponte.
Nell’ala dedicata alla famiglia vi trovano posto altre alla zona giorno a pianta aperta, ampiamente connessa all’esterno grazie alle superfici vetrate, la camera dei bambini, la camera da letto e il bagno principali

La casa è stata eretta utilizzando il sistema strutturale 2-by-4, isolamento in lana minerale e rivestimento strutturale in pannelli OSB. Le finiture interne dominanti sono il pannello in legno massello di abete naturale a 3 strati e il cartongesso bianco. Le camere hanno pavimenti in rovere, i corridoi e bagni pavimenti in ceramica.
Le fondazioni sono divise in due sezioni: la suite in-law presenta fondazioni in cemento armato mentre la casa di famiglia è sollevata da terra su palafitte in acciaio. Questo dà una certa leggerezza all'edificio, riducendo la sua scala e l'impatto sul terreno.
La casa è dotata di riscaldamento ad acqua a pavimento alimentato da una caldaia elettrica supportato a necessità da una stufa a legna sistemata nella zona giorno e da radiatori nei bagni

Gallery
Foto credits
Immagine di copertina, immagini articolo e gallery: Václav Novák
Disegni: studio KLAR

















