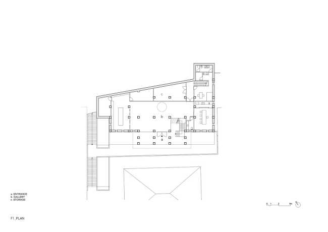
Tradition and modernity in the Fangzhang Building
Symbolically positioned on the 2nd level of the “8 layers of the mountain”, the one where the immortal is practiced but also the one closest to the human world, the Fangzhang Building stands at the top of the courtyard of the Tongbai palace temple complex. For the architecture firm KiKi ARCHi, which in its architecture projects designs the new building, integrating the language of modern design based on traditional style becomes the focus of the work.
























