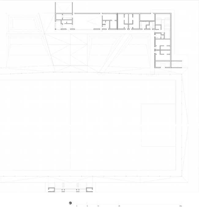
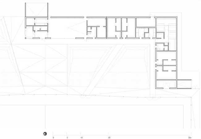
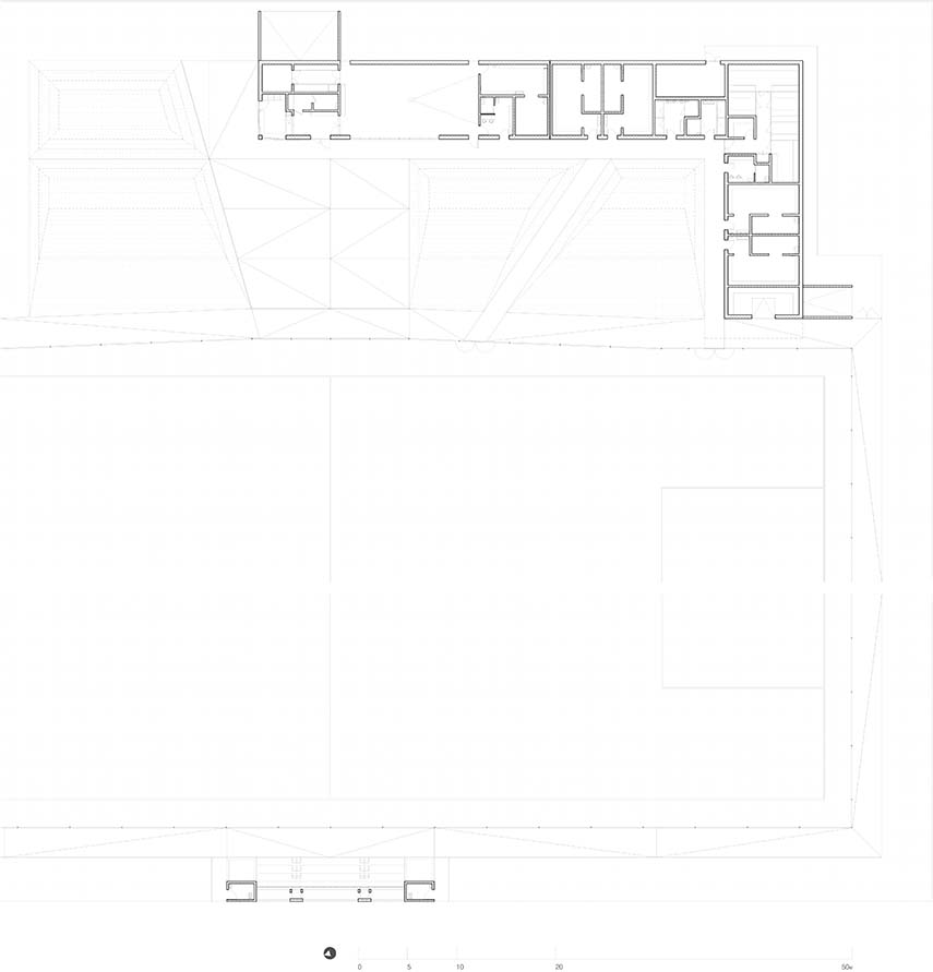
New sports facility program
Among the various architecture projects signed by Schemaa, in 2021 the construction of the new sports facility at the Bondy stadium was completed, located in the southeast corner of the lot and its program included a multi-purpose hall, a locker room, the grandstand, a new synthetic field, and the arrangement of some outdoor areas






















