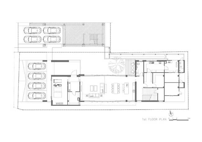
Stays that look at each other, fitness room, extra parking spaces and connected kitchens
Designed by the Thai studio archi.smith, which operates in the field of architecture projects and interior design, the Monow House is designed to be in close relationship with the client's parents' house located on the adjacent property. The result, after removing the boundary wall, is a shared courtyard garden that visually connects the father's TV room with the son's living room, a fitness room and extra parking spaces for the whole family, and a covered walkway that connects the kitchens of the two houses allowing the sharing of services























