In una posizione tranquilla e piatta, in un complesso residenziale alla periferia di Buenos Aires, in Argentina, è prevista la costruzione di una casa dove la struttura in cemento armato a vista prenderà il centro della scena. I regolamenti permettevano solo due piani fuori terra, facendosi che il gioco di volumi strutturali fosse il nucleo del progetto


Casa Giardino a Buenos Aires. La struttura in cemento armato a vista si apre verso l’esterno
Lo Studio di Alberto Campo Baeza realizza in progetto di una villa periferia di Buenos Aires, in Argentina. La struttura su due livelli è stata pensata con una struttura in cemento armato a vista, dove alcune pareti scompaiono per aprire la “scatola strutturale” verso il giardino
- #Argentina>
- #Strutture>
- #Nuova costruzione>
- #Villa>
- #Cemento>
- #Architettura>
- #Architectures>

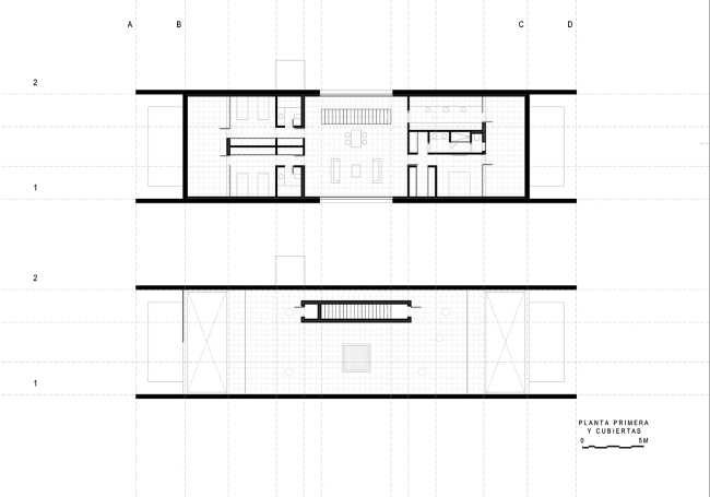
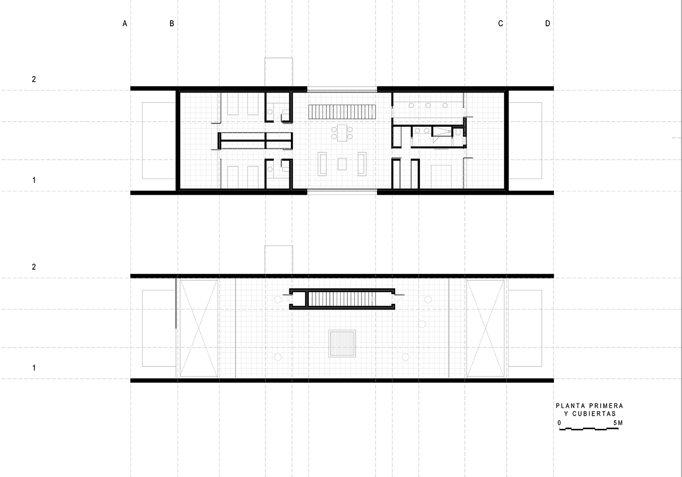
La parte superiore sarà adibita solo a zona notte, lasciando le aree pubbliche al piano inferiore a contatto diretto con il giardino. La struttura in cemento armato a vista è la protagonista principale, con le sue due ampie travi ad angolo e il doppio volume, formando una scatola aperta verso il cielo

Il piano terra, consolidato dai quattro pilastri che sorreggono le due grandi travi, è concepito come uno spazio continuo e trasparente, dove le aree di servizio di questa zona sono disposte come singole scatole consecutive sopra una grande piattaforma orizzontale di cemento a vista che definisce lo spazio del pavimento, come se fosse un tappeto


 
                











