

Volumi che si aprono in “cannocchiali ottici” ad inghiottire la luce e la bellezza
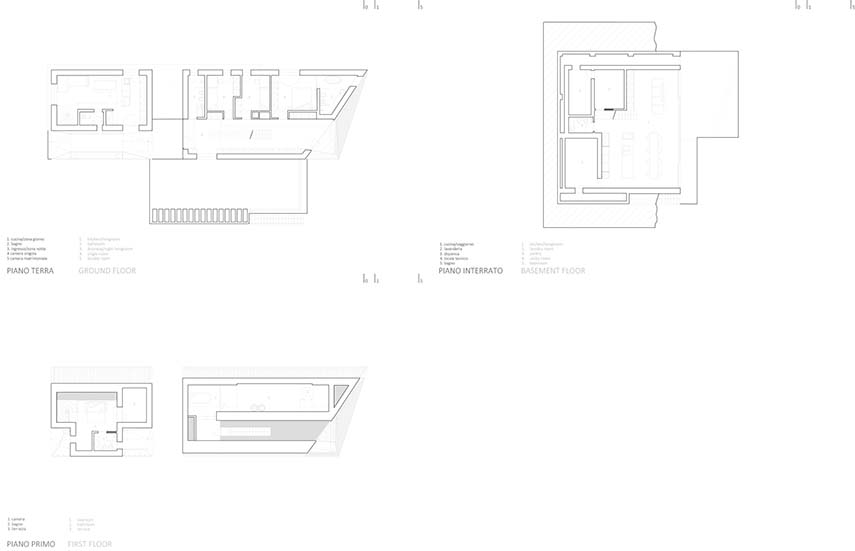
Tutelare il contesto ambientale e minimizzare l’impatto visivo dalla via Francigena sono i focus che, insieme ad una concezione contemporanea dell’abitare, guidano il progetto di LDA.iMdA architetti associati per la Casa Sotto la Nuvola. Orientata su un asse nord-sud perpendicolare al crinale della collina, l’abitazione si immerge nel paesaggio grazie ai suoi volumi che si aprono in “cannocchiali ottici” ad inghiottirne la luce e la bellezza






















