Il lotto dove sorge la Cherry Tree House presenta un cospicuo dislivello: a causa di ciò nell’edificio originale il piano terra ricordava uno scantinato male illuminato, ma fortunatamente si era riusciti a posizionare la casa a schiera ricavando un piccolo giardino alberato anche se di difficile accesso proprio a causa del dislivello. Inoltre, le stanze principali erano orientate in direzione del sole, ma affacciavano sulla strada. Il layout interno era distribuito con un appartamento per ogni piano dell’edificio con un ingresso in comune


Ricostruzione della Cherry Tree House a Praga. Una casa stravagante ma che non infrange le regole
Il progetto della Cherry Tree House è la ricostruzione di una casa con terrazza per le esigenze di una famiglia di oggi per una confortevole vita in città. L a stessa tipologia di “casa a terrazza” si ripete nelle strade del vicinato dove è possibile trovare tetti pseudo-mansardati, prefabbricazioni parziali e materiali dei primi anni '90
- #Europa>
- #Repubblica Ceca>
- #Architettura>
- #Recupero edilizio>
- #Residenza>
- #Abitazione>
- #Restyling>
- #Interior>
- #Ristrutturazione>

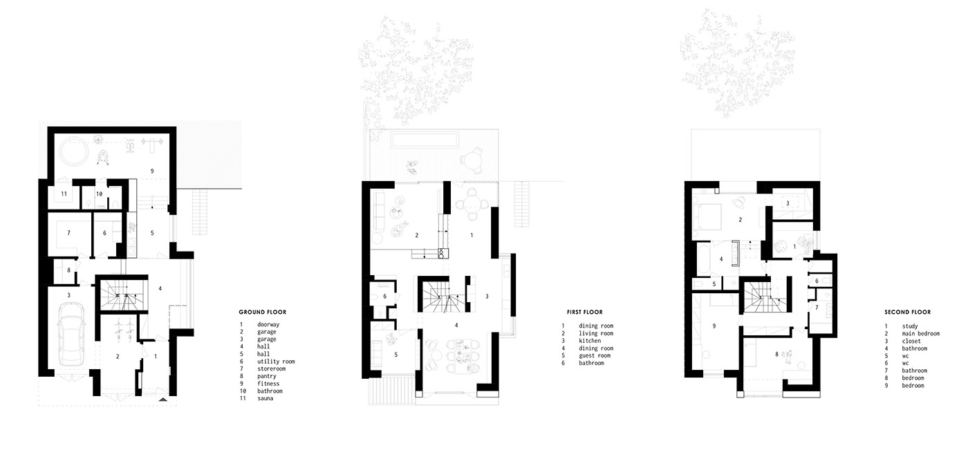
Il progetto di riqualificazione dello studio di architettura SOA architekti, per rispondere alla nuova esigenza di un’unica abitazione per la famiglia dei committenti, ha previsto innanzitutto l’unificazione della casa con il collegamento diretto di tutti i piani: la scala diventa il nuovo centro del layout della Cherry Tree House. Il piano terra rimane un ambiente di servizio ma viene ridistribuito in maniera più funzionale e ampliato al di sotto del giardino per creare una palestra. Viene aperta una grande finestra nel vano scala

Al primo piano della Cherry Tree House si apre uno spazio interconnesso che vede al centro la scala e distribuisce tutti gli ambienti. Una grande porta scorrevole collega il soggiorno con il giardino: le connessioni visive con quest’ultimo, sia nel soggiorno che nel resto dell’abitazione, diventano uno degli elementi centrali del design. All'ultimo piano si trovano le camere da letto a cui si accede da una stretta passerella che gira intorno alla scala. La camera da letto principale ha una cabina armadi e un bagno privato. Originariamente era stato previsto uno studio, ma in corso d’opera si è optato per una camera da letto aggiuntiva

La ripartizione esterna della casa si basa sulla forma della mansarda originale: Il rivestimento della facciata in pannelli di fibra-cemento segna la transizione verso il tetto. Le finestre in rovere con vetri senza cornice sono collegate otticamente con il bordo della copertura. Il tetto ospita un solarium con copertura mobile che copre l'intera area della terrazza in giardino.
Il giardino seppure piccolo rimane un punto forte della casa, subisce cambiamenti impegnativi e le sue viste dall’interno dell’abitazione ne definiscono la nuova composizione. Il vecchio ciliegio rimane comunque la sua caratteristica dominante

Gallery
Foto credits
Immagine di copertina, immagini articolo e gallery: Alex Shoots Buildings
Disegni: SOA architekti

















