Il patrimonio del sito è stato caratterizzato dalla produzione industriale. Sia la fabbrica Ripolin di vernice risalente ai primi del ‘900 e la fabbrica olandese Seintoestellen (1920) occupavano questo sito. Successivamente, le fabbriche sono state sostituite da uffici e quartieri residenziali. Nel 1980, il sito è stato acquisito per l'espansione della Philips / Alcatel-Lucent. Dei cinque edifici per uffici esistenti, tre saranno demoliti, uno sarà convertito in residenza e l'altro ospiterà la sede della organizzazione e le abitazioni di Alliantie


Riqualificazione nell'Olanda del Nord. Ex-fabbriche diventano uffici e residenze
Nei prossimi anni, il sito di Lucent a Hilversum, sarà trasformato in un vibrante tessuto ad uso misto tra commerciale e residenziale. Situato in posizione centrale, nei pressi della stazione ferroviaria e del centro della città, la zona è attraente per lavorare e vivere
- #Europa>
- #Paesi Bassi>
- #Quartiere>
- #Recupero edilizio>
- #Legno>
- #Cemento>
- #Architectures>
- #Ristrutturazione>

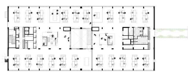
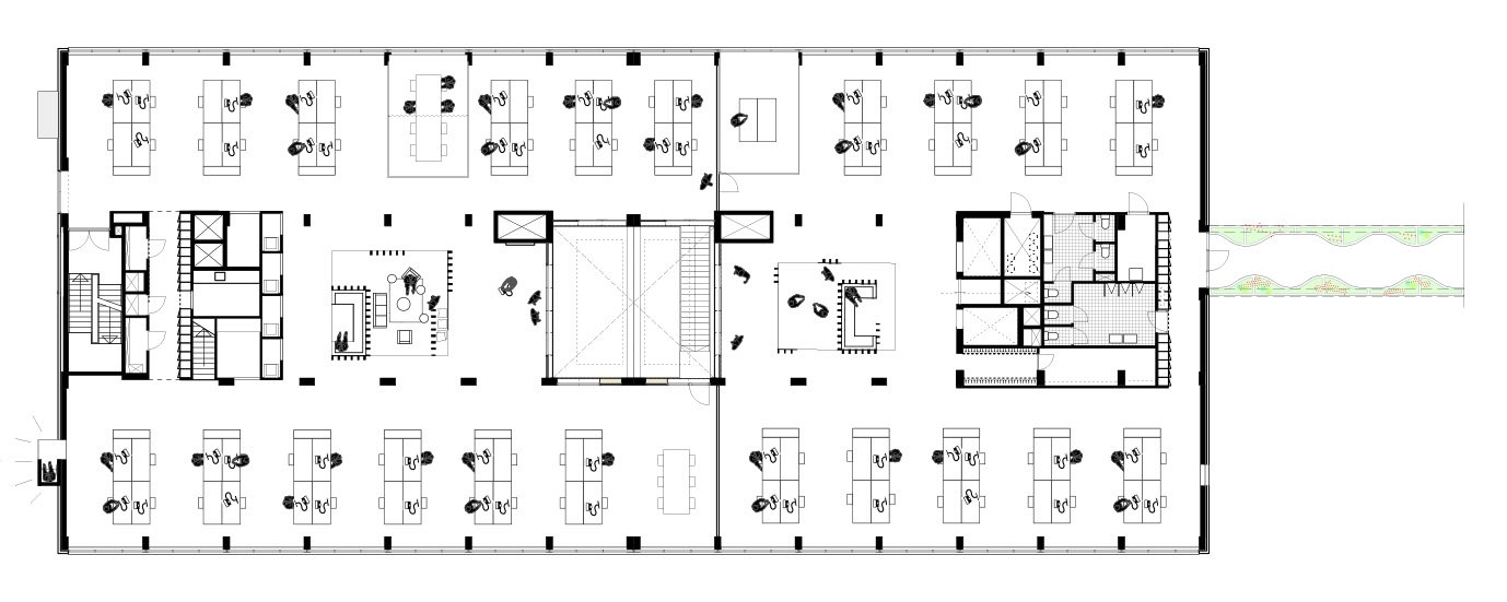
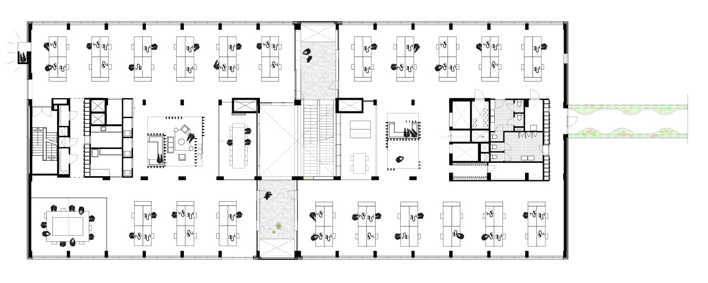
L’Azienda De Alliantie aveva bisogno di una nuova sede per riunire gli uffici regionali a diventare più efficiente. Essendo in buone condizioni l'edificio per uffici di quattro piani è stato mantenuto. Situato all'angolo del sito, l’edificio aveva bisogno di un volto pubblico di fronte al centro commerciale e della città. I piani degli uffici ricevono luce sufficiente sul perimetro. Inoltre, De Alliantie voleva che il disegno esprimesse la nuova identità dell'ufficio

Un nuovo atrio diventa il cuore pulsante dell'edificio che aumenta la luce del giorno e l'aria all'interno dell'edificio profonda, migliora la qualità dello spazio e offre opportunità di interazione

L'intervento principale rimuove pavimenti e rivestimenti. Tra il telaio di calcestruzzo è stato aperto un ampio atrio al centro dell'edificio, alto quattro piani. Questo spazio diventa il nuovo nucleo sociale attorno al quale ruotano le diverse funzioni. Su ogni piano si legge l'impronta dell’atrio e la facciata “ritagliata” a zig-zag tra il telaio in calcestruzzo ed i nuclei dei servizi fissi. Questo si traduce in un atrio dinamico con balconi sovrastanti, marciapiedi, luoghi panoramici e vuoti, che si completa con l'interazione tra le sezioni aperte e chiuse della struttura in calcestruzzo a vista

Il pavimento a mosaico di grandi dimensioni accentua ulteriormente questa vivacità. Aperture interne invitano gli uffici al dialogo e l'atrio sempre con nuove sezioni in facciata porta la luce del giorno nell'edificio. Questi ritagli a zig-zag lungo il telaio in calcestruzzo offrono scorci dominanti all’interno della società, in particolare quando questa è illuminata di notte. Nuovi accessi facilitano un percorso diagonale attraverso l'edificio. L'intera facciata sarà dipinta di nero. Con questa nuova trasparenza e la connettività con gli esercizi di ristorazione al piano terra pianificate, l'edificio acquisisce una chiara valenza pubblica


















