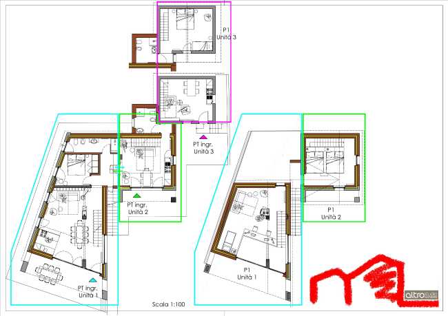
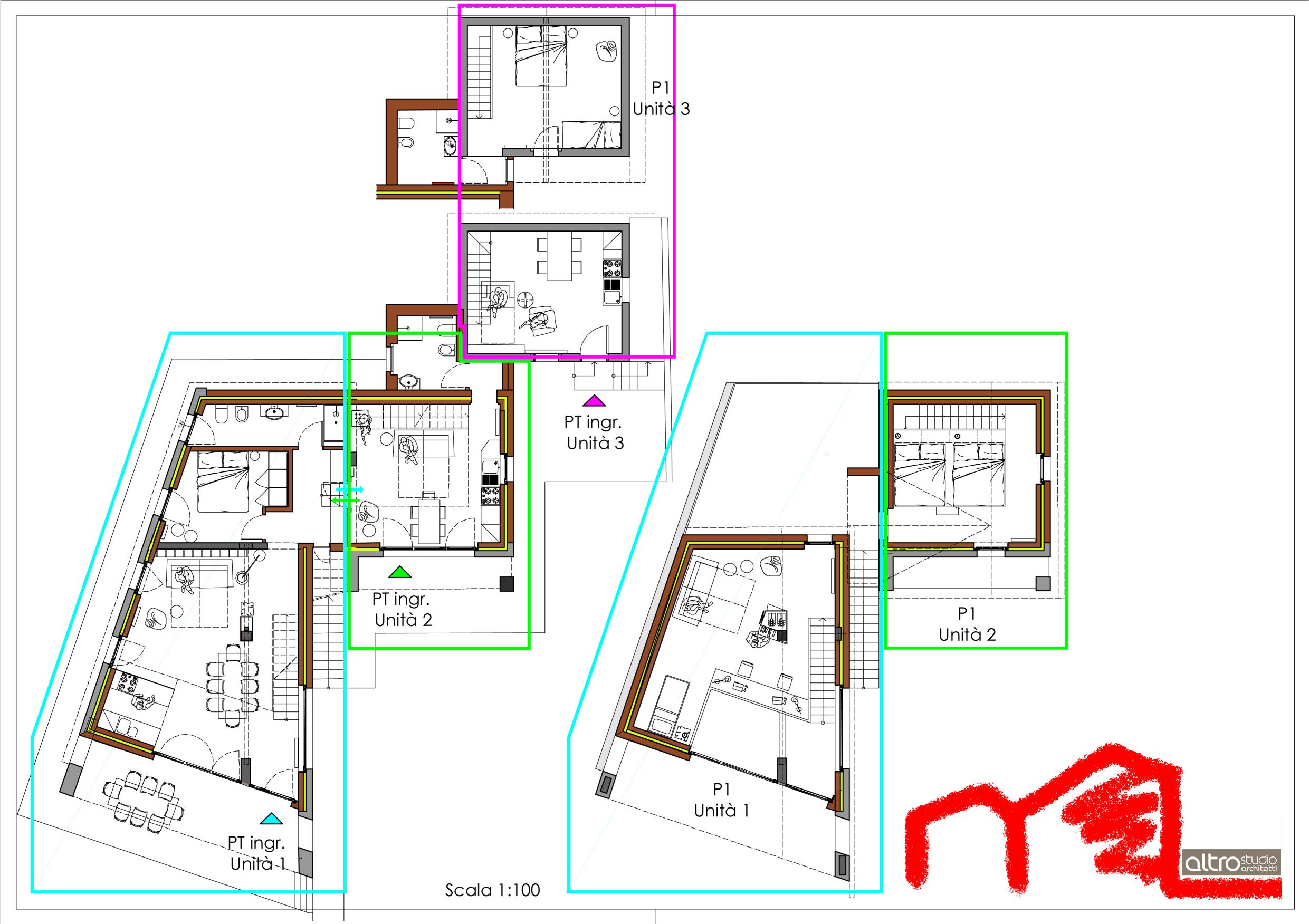
L’idea del cottage “FomHouse” nasce dalla volontà di creare dei servizi ricettivi nei due versanti turistici sul Lago di Como che sono interessati da diverse ma complementari vocazioni sportive. Gli appartamenti sono indipendenti ma in realtà complementari. L’edificio si compone di due blocchi architettonici comunicanti con diversa interpretazione compositiva ma unica destinazione, residenziale ricettiva per locazioni stagionali mirate ad una clientela appassionata di sport d’acqua, aria e montagna


Cottage sul Lago di Como. Architettura che dialoga tra indoor e outdoor
Forme pulite vestite da materiali tecnici quali vetro e alluminio, vengono enfatizzate da una copertura che diventa "vela sospesa". Così Altrostudio Architetti ha reinterpretato lo spazio circostante creando due appartamenti indipendenti ma complementari
- #Europa>
- #Italia>
- #Architettura>
- #Villa>
- #Nuova costruzione>
- #Legno>
- #Vetro>
- #Intonaco>
- #Pietra>
- #Metallo>
- #Edilizia>
- #Architectures>

La vela della copertura caratterizza il corpo di fabbrica moderno, questo è stato reso possibile grazie alla ricerca di un sistema costruttivo portante leggero. Dopo un breve periodo di progettazione integrata, il pensiero architettonico e la concretezza ingegneristica hanno condotto all’adozione del Solaio Plastbau Metal, un solaio armato e gettato in opera, composto da un pannello-cassero autoportante a geometria variabile e coibentazione termica incorporata

Le sue elevate prestazioni sono frutto della collaborazione strutturale fra polistirene espanso e profili metallici zincati opportunamente forati e sagomati, questa unione conferisce infatti, oltre a un peso ridottissimo, l’autoportanza e la rigidità necessaria per reggere efficacemente i carichi di prima fase come calcestruzzo fresco, ferri di armatura, maestranze ecc

La semplicità costruttiva ricercata risponde al principio del contenimento dei costi e queste indicazioni si sono riflesse nello studio delle distribuzioni interne, predisposte per una flessibilità totale subordinata alle richieste dei fruitori; un disimpegno centrale ai due corpi, in corrispondenza di una scala che supera un dislivello di 70 cm, permette la divisione temporanea degli ambienti in due unità indipendenti che trovano più respiro nelle zone giorno rispetto alle zone notte

Gli arredi sono integrati il più possibile con gli elementi strutturali, come nel caso del pilastro rivestito da pannelli in legno che diventano armadio a vani chiusi e a giorno, nonché alla valorizzazione di alcuni particolari estetici come le rampe di scale che, con il loro disegno e fissaggio sospeso, paiono galleggiare senza agganci a terra





















