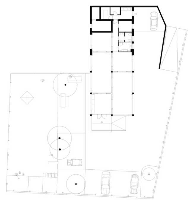
Il garage è situato nella città di Albavilla, nella regione lombarda del Nord Italia. La conversione del garage in asilo, per opera dello studio Ortalli Verrier, destinato a venticinque bambini, riguarda inizialmente l'aspetto impiantistico, volto a creare un clima più possibile comfortevole


Garage trasformato in scuola materna. Partizioni colorate per un micro-mondo infantile
Ad Albavilla, in Lombardia, un garage esistente è convertito in scuola materna destinata a 25 bambini dallo studio d'architettura Ortalli Verrier che, grazie ad un sapiente uso di colori e divisione di spazi, dona alla struttura del massimo comfort
- #Europa>
- #Italia>
- #Scuola infanzia>
- #Restyling>
- #Colore>
- #Architectures>
- #Architettura>

All'interno vengono inserite partizioni di diversi colori, che creano un insieme di micro-mondi per bambini. Gli spazi sono divisi tra loro da porte scorrevoli, grazie alle quali gli insegnanti, in base alle attività, possono creare spazi più o meno ampi. Grazie al suo design, l'edificio si presta occasionalmente anche per feste e corsi per tutto il quartiere

Gallery
Foto: Federico Villa












