Il progetto di risanamento del “Pförterhaus” di Magrè (BZ), a cura dell'Arch.Enrico Pedri, si è posto l’obiettivo di non stravolgere la tipologia architettonica esistente eseguendo il minor numero possibile di interventi. L’edificio è stato ristrutturato per ospitare al piano terra il “Kreativgruppe” di un Centro Sociale dove verranno realizzati dei laboratori creativi, il primo piano invece, sarà occupato dai ragazzi del centro giovani di Magrè


Riqualificazione del Pförtnerhaus di Magrè. Ridotto spessore del cappotto per alte prestazioni
Punto focale della riqualificazione energetica del Pförtnerhaus di Magrè è stato quello di rispettare l’architettura esistente utilizzando all’esterno finiture tradizionali ed efficientando l’edificio dall’interno con un cappotto di spessore ridotto
- #Europa>
- #Italia>
- #Centro culturale>
- #Restauro>
- #Metallo>
- #Legno>
- #Intonaco>
- #Architectures>
- #Ristrutturazione>

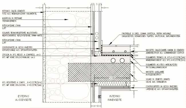
Per la ristrutturazione dell’edificio si è scelto di utilizzare materiali tradizionali per le finiture esterne andando ad efficientare l’edificio dall’interno, con un cappotto, attraverso l’attuale innovativa tecnologia e i performanti materiali isolanti da costruzione. Le pareti esistenti in pietra e tutte le pareti perimetrali dei locali riscaldati, sono state rivestite con contropareti in cartongesso (11,5 cm di spessore finito) in cui è stato inserito l’isolante termoriflettente Over-foil Multistrato 19 di Overall che consente di ottenere prestazioni eccezionali ed un elevato risparmio energetico nelle ristrutturazioni a basso spessore. Grazie agli interventi di efficientamento energetico ora l'edificio risulta CasaClima B

Over-foil Multistrato 19 è un isolante termoriflettente in alluminio, ideale per contenere gli spessori nelle ristrutturazioni e nelle nuove costruzioni in abbinamento a sistemi a secco. Utilizzato nei cappotti termici e nei controsoffitti, permette di sfruttare gli spazi d’aria che si creano, ottenendo così strutture altamente performanti ma a bassissimo spessore. Il prodotto possiede anche importanti caratteristiche che lo rendono resistente al fuoco, le facce esterne sono infatti in alluminio puro protetto autoestinguente alla fiamma
















