

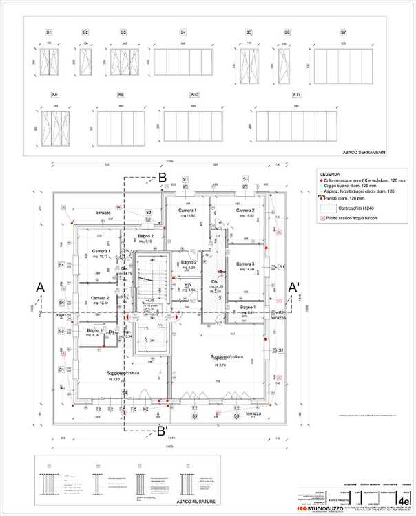
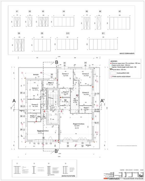
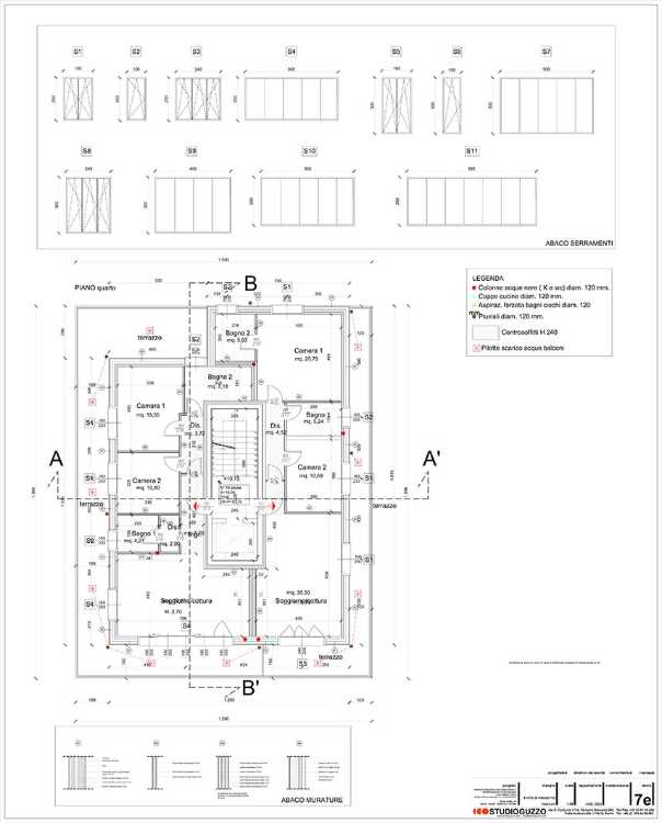
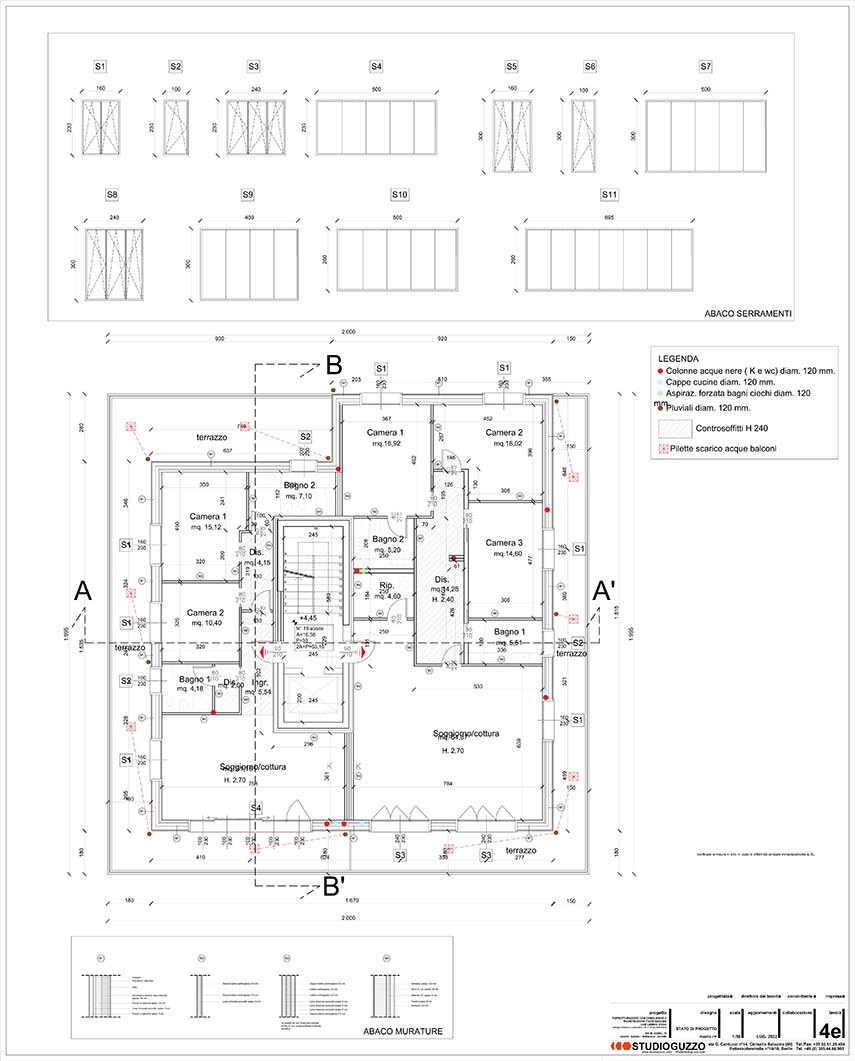
L’edificio preesistente
A Cinisiello Balsamo, nella città metropolitana di Milano, sul lotto d’angolo tra via Fosse Adreatine e via Gorki, un edificio commerciale in disuso di tre piani fuori terra e uno interrato viene completamente demolito per la nuova realizzazione della Residenza Gorki 75. Il consolidamento dell’edificio preesistente, che si presentava con facciate in klinker color ocra, sarebbe stato troppo oneroso rispetto alla completa ricostruzione






















