Il progetto ha previsto una completa revisione di tutte le facciate esterne, l’adeguamento dell’immobile alle normative tecniche vigenti in materia di prevenzione incendi, sicurezza ed igiene, barriere architettoniche e la verifica e l’ottimizzazione degli impianti tecnologici


Complesso natatorio a Ronco Scrivia. Riqualificazione in provincia di Genova
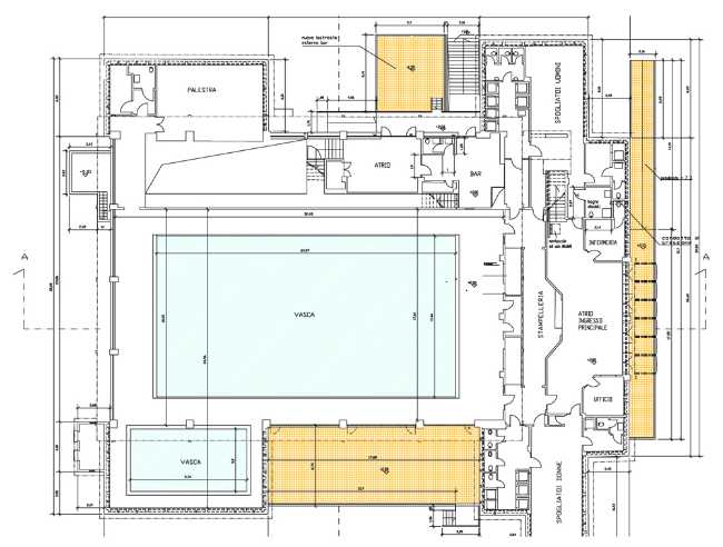
L'Architetto Alessandro Bianchi ristruttura completamente gli esterni del complesso natatorio di Ronco Scrivia in provincia di Genova. Il progetto prevede oltre al recupero edilizio delle facciate, la riorganizzazione funzionale degli ambienti interni
- #Europa>
- #Italia>
- #Centro sportivo>
- #Recupero edilizio>
- #Architectures>
- #Ristrutturazione>

Progettazione architettonica sia preliminare che definitiva ed esecutiva, direzione lavori ed incarico di coordinatore alla sicurezza per l’esecuzione dei lavori relativi all’intervento di recupero edilizio e funzionale del complesso natatorio di Ronco Scrivia, in Provincia di Genova

Il complesso ha una ricettività media di circa 500 persone/giorno. La Superficie totale è di circa 2400 mq e la volumetria superiore a 10.000 mc

L'Architetto Alessandro Bianchi con proprio studio professionale, “Studio Bianchi servizi di architettura”, attiva diversi e continuativi rapporti di consulenza con Società di costruzioni e progettazioni, Enti Pubblici e privati e Aziende industriali













