Il progetto di questa villa, realizzato dagli architetti Heinrich Zöschg e Alexander Karnutsch, parte dalla demolizione di un vecchio fienile e dal desiderio del committente di realizzare un'architettura contemporanea con materiali da costruzione naturali e ruvidi, oltre che con il legno. Altro concetto base importante è stato, sicuramente, l'inserimento dell'edificio in un paesaggio culturale e architettonico sensibile con le sue terrazze in pietra naturale


Villa nei dintorni di Merano. Una casa colonica moderna tra tradizione e innovazione
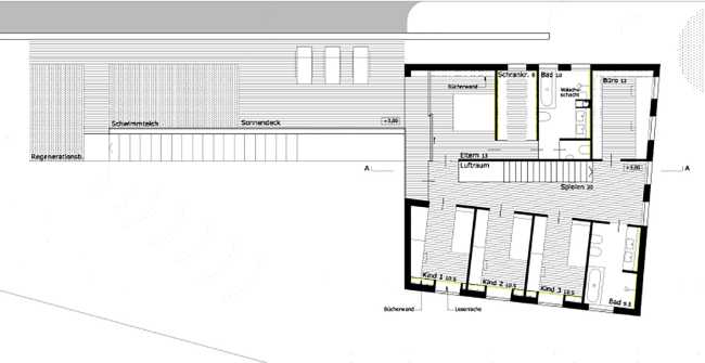
Si parte dalla demolizione di un vecchio fienile per dare vita ad una villa moderna che affonda le sue radici nell’architettura tradizionale tirolese. Un mix di componenti performanti e grande attenzione progettuale hanno portato alla realizzazione di una Casaclima A.

Da queste premesse ha preso vita il concept architettonico, l'idea di una "casa colonica moderna" che si potesse integrare nelle terrazze circostanti con un gioco di sapiente sfalsamento delle aree esterne. L’edificio si sviluppa partendo da da due corpi, realizzati con il legno recuperato del fienile demolito, sul quale si erge poi un blocco monolitico con la classica navata centrale della casa colonica tirolese. I due piani dialogano tra loro in un contrasto architettonico tra lo spazio abitativo vetrato (al piano inferiore) e un'area privata chiusa (al piano superiore), che si apre all’esterno solo grazie ad alcune finestre in facciata

L’idea della "casa colonica moderna" viene rafforzata dal progetto degli interni, che si sviluppano intorno ai due tavoli storici di proprietà del costruttore. I mobili e gli accessori, dalle linee pulite e senza tempo, occupano sempre l'intera altezza della stanza e assegnano a ciascuna parete un'unica e chiara funzione. Il piano terra è caratterizzato dal pavimento di quarzite d'argento e dalle pareti rivestite di legno recuperato mentre, i pavimenti e i mobili al piano superiore, sono realizzati in legno di rovere. Gli spazi interni risultano, così, armoniosi grazie ad un unico fil rouge progettuale evidente: l’alternanza tra le superfici bianche e i colori accesi freddi delle pareti che creano un perfetto equilibrio con i toni caldi e naturali del legno

Il grande impegno nel progetto architettonico ed estetico della casa non ha però tolto spazio alla progettazione a livello di performance energetiche, la casa è infatti una Casaclima A. Per ottenere una classe energetica di questo livello è stato necessario utilizzare componenti iper performanti, ed è qui che entra in gioco la grande esperienza di Hausplus nei serramenti passivi

I serramenti utilizzati sono Optiwin Purista, serramenti a tutto vetro senza telaio a vista esterno. Purista è un serramento realizzato internamente in abete bianco ed esternamente in alluminio con un profilo minimale brevettato in modo da correggere il ponte termico esterno e garantire l’efficienza energetica perfetta. E´ dotato infatti di 4 guarnizioni, per evitare eventuali condense intratelaio e per una maggiore capacità di abbattimento acustico, e di una coibentazione tra vetro e telaio dell’anta (in lana di pecora) per limitare il ponte termico sul distanziatore e annullare ogni possibile condensa sul bordo vetro

Le cerniere a scomparsa e il telaio complanare interno rendono i serramenti accattivanti anche sotto il profilo estetico e il telaio a tutto vetro annulla completamente le complicazioni derivate dalla necessità di effettuare manutenzioni nel corso degli anni. Importante sottolineare che il serramento ha ricevuto nel 2015 il 1° premio come miglior componente a livello mondiale (categoria serramenti in legno alluminio) dal Passivhaus Institut di Darmstadt ( Component Award 2015).

Gallery
Photo by Klaus Peterlin
















