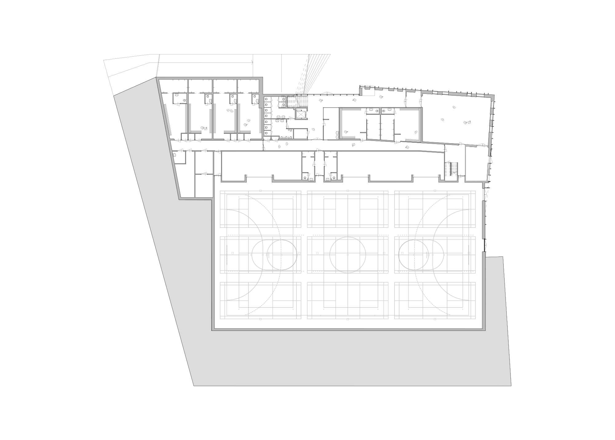
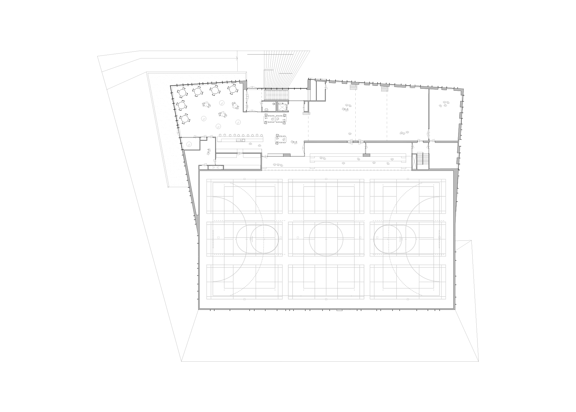
Il nuovo complesso ai confini della città ha una superficie di circa 3.000 mq e collega i distretti di Westenholte e Stadshagen. L'edificio ospita un centro comunità con strutture per l'ospitalità, un centro sportivo open space con strutture didattiche e varie sale multifunzionali che possono essere utilizzate per la musica, la danza e l'istruzione. L'edificio è stato progettato dagli architetti Moederscheim Moonen, che sono stati coinvolti nella sua realizzazione dalla fase di progettazione alla sua ultima accettazione


Centro di aggregazione nei Paesi bassi. Legno e Vetro per l'Architettura
A Zwolle, in Provincia di Rotterdam, nei Paesi Bassi, gli Architetti dello studio Moederscheim Moonen Architects realizzano un centro di aggregazione dove è possibile svolgere sia attività sportive sia eventi musicali e culturali
- #Europa>
- #Paesi Bassi>
- #Nuova costruzione>
- #Centro polifunzionale>
- #Legno>
- #Vetro>
- #Architectures>
- #Architettura>

Una delle principali sfide in questo progetto dell'Architetto Erik Moederscheim è stata quella di connettere l'edificio a un grande e diversificato gruppo di utenti. Il complesso non è solo destinato agli utenti che si impegnano in attività sportive, eventi musicali e culturali. Soprattutto, la gente del luogo lo vive come uno spazio di aggregazione: un posto in cui si trascorre una giornata per incontrare altre persone. Ecco perché sia in senso letterale che figurativo, il design dell'edificio è stato realizzato con molte trasparente ed è facilmente accessibile in modo che possa connettersi ai quartieri circostanti

L'edificio approfitta delle differenze di altezza trovate sul sito. Una parte considerevole del complesso è in realtà situata sotto terra. Prendendo questa posizione nel paesaggio come punto di partenza, il complesso sembra quasi piegarsi letteralmente grazie al suo tetto impressionante, che si apre sulle zone pubbliche chiave. La linea zig-zag del bordo del tetto è una delle caratteristiche più caratteristiche dell'edificio. Infatti, si potrebbe chiamare il tetto verde l'elemento di riferimento di questo design: mette in evidenza i punti chiave in e intorno al nuovo complesso

Le pendici del paesaggio circostante e l'edificio si intersecano a metà lungo la parete laterale, dove il design incorpora una grande area d'ingresso. I pedoni possono entrare nel complesso sia dal primo piano che, se arrivano al parcheggio, al livello stradale. Entrambi gli ingressi si riuniscono in un incavo nella facciata, dove sono collegati da una scala che sembra muoversi verso l'esterno dall'interno dell'edificio

L'aspetto di un edificio pubblico non è sempre determinato dalla sua trasparenza. Si tratta anche di disegnare persone e velare ciò che vedono. Il disegno di facciata gioca un ruolo importante in questo. La tua esperienza dell'interno dell'edificio è determinata dalle colonne verticali profonde lungo la sua esternalità. In altre parole, il tuo punto di vista è un ruolo fondamentale nella connessione visiva con ciò che si trova dentro. Inoltre, la facciata conferisce all'edificio una qualità straordinaria e migliora la sua interazione con il paesaggio circostante












