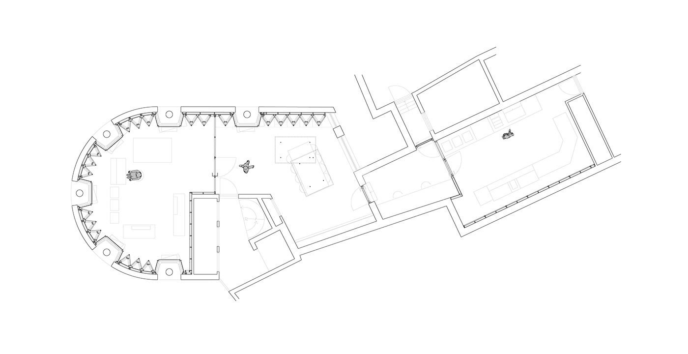
Gli studi di Willem Twee e la sala concerti sono realizzati secondo il progetto di ristrutturazione di Reset architecture di una vecchia sinagoga monumentale in’s-Hertogenbosch, nei Paesi Bassi. I Willem Twee Studios sostituiscono gli spazi delle soffitte adibiti precedentemente ad ufficio; si tratta quindi del recupero di parte dell'edificio storico, in uno spazio particolare, e di una parte dell’estensione a forma di goccia risalente agli anni novanta. Lo spazio curvo esistente con l'eccentrico bovindo invertito ha dato origine a un concetto di design che accentua le dinamiche spaziali


Willem Twee studios. Spazi per la musica elettronica nelle soffitte di una vecchia sinagoga monumentale
Reset architecture ha convertito uno spazio ufficio nei Willem Twee Studios, studi musicali per musica elettronica ed elettroacustica. Questo eccezionale spazio di lavoro sonoro e musicale sta attirando l'attenzione internazionale dei musicisti elettroacustici
- #Europa>
- #Paesi Bassi>
- #Architettura>
- #Edificio storico>
- #Cultura e servizi>
- #Restyling>
- #Interior>
- #Architettura>

È stato introdotto un nuovo muro acustico a zig-zag che enfatizza la curva e collega i nuovi spazi dello studio. La forma a zig-zag è un escamotage che aumenta l'area di assorbimento acustico. Lo studio musicale nell'ala degli uffici della sinagoga è una scatola di legno insonorizzata e incorniciata. All'interno di questo box il muro a zig-zag controlla l'acustica della stanza. I pannelli da pavimento a soffitto, con isolamento in lino, sono rifiniti con tessuto di lana. Il soffitto è realizzato con pannelli fonoassorbenti in legno di betulla con strisce LED per l’illuminazione. I pannelli di legno e tessuti grigi sono utilizzati anche nello spazio sottotetto per migliorare acusticamente lo spazio

Questa tavolozza di materiali e colori si adatta bene con le attrezzature di musica metal e forma un'atmosfera calma e ricca di concentrazione e creatività.
In collaborazione con i musicisti dello studio, i designers hanno progettato alcuni mobili dall’estetica semplice in acciaio nero e legno di betulla per una disposizione fissa e precisa delle attrezzature

Gallery
Foto credits
Immagine di copertina, immagini articolo e gallery: Stijn Poelstra
Disegni: Reset architecture

















