In questo progetto, un bungalow degli anni Sessanta, solitario, con un tetto dolcemente a spiovente è stato ristrutturato e ampliato dagli Architetti dello studio Urbain ac


Open Space in Belgio. Abitare un bungalow in Legno
In questo progetto realizzato a Sint-Denijs-Westrem, in Belgio, un bungalow degli anni Sessanta, solitario, con un tetto dolcemente a spiovente, è stato ristrutturato e ampliato dagli Architetti dello studio Urbain ac
- #Europa>
- #Belgio>
- #Abitazione>
- #Ampliamento edificio>
- #Legno>
- #Vetro>
- #Architectures>
- #Architettura>

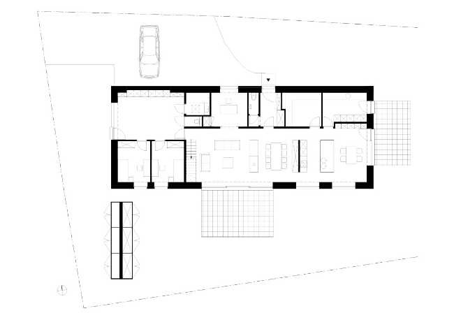
Un nuovo piano è stato realizzato a partire dall'esistente in stretto rapporto con il giardino. Le camere esistenti sulla facciata nord del bungalow sono state adeguate in modo da formare una striscia funzionale, che serve come ingresso, bagno, ripostigli e uno spazio ufficio privato

Gli spazi abitativi sono stati allineati in uno spazio aperto lungo la facciata sud, beneficiando di ampie finestre che danno accesso alla mattina e pomeriggio terrazzi e giardino. Due elementi di arredo dividono lo spazio aperto: un camino e un armadietto della cucina

Nel garage esistente due camere da letto dei bambini compatti sono montati in, che si aprono su una sala giochi. In cima alle camere da letto si aggiunge un volume con una camera matrimoniale, un bagno e una sala medicazione. Questo "nido" è raggiungibile attraverso una scala aperta sul soggiorno

Un tetto piano di nuova costruzione, con travi in legno, dà ritmo allo spazio interno. L'intervallo è ridotto introducendo una nuova linea di supporto centrale, per mezzo di un profilo in acciaio, poggiante su due colonne di acciaio tenero

Il bungalow è dotato di un guscio isolante, coperto con un rivestimento legno modificato termicamente. Preservando la parete della cavità isolato esistente, sono creati vani finestre, con finestre raggiungono il livello del pavimento. Nel dettaglio del rivestimento della facciata, sono stati introdotti giunti orizzontali in composizione ben equilibrata
















