L’intento principale è quello di costruire il progetto aggiungendo il meno possibile. Attraverso la ridefinizione del parapetto e della piccola falda inclinata a sud, lavorando sul prospetto, con piccoli interventi di aggiunta (parapetto-camino) le due cellule si fondano, dando vita ad un nuovo organismo. Il progetto interviene sulla facciata sud collegando i due corpi e definendo un andamento in sequenza della copertura. Nell’angolo verso sud-ovest dell’edificio più vecchio viene inserito un camino che permette, oltre alla mera funzione pratica, di accompagnare l’unione delle due facciate


Ristrutturazione residenziale a Madesimo. L'esistente trasformato secondo Qualità
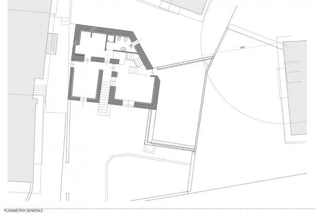
Lo Studio ES-arch di Enrico Scaramellini e l'Architetto Francesco Manzoni ristrutturano a Madesimo un edificio degli anni ‘20-‘30 affiancato ad una costruzione risalente agli anni ’70, con la totale sostituzione della copertura
- #Europa>
- #Italia>
- #Abitazione>
- #Recupero edilizio>
- #Architectures>
- #Ristrutturazione>

Una scatola lignea fuoriesce in misura ridotta al piano secondo, definendo in maniera chiara la composizione della facciata. Elemento ricorrente sarà il trattamento delle parti lignee. Un particolare disegno permetterà alla luce di filtrare all’interno dell’edificio e di caratterizzare le singole stanze

Il tema principale di progetto è quello di trasformare elementi che sono considerati di disturbo in elementi di qualità, per poi restituirli con nuovi valori. Le pareti esistenti saranno parzialmente rivestite di un cappotto termico esterno. Il progetto prevede il completo rifacimento della copertura che manterrà le sue dimensioni perimetrali, salvo qualche rettifica geometrica dovuta a mancanza di parallelismo tra facciata e copertura

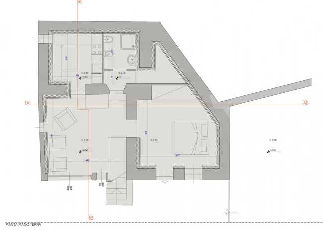
Il progetto prevede la definizione di un’unica unità abitativa senza alcuna suddivisione in appartamenti. Al piano terra, vi sono dei locali taverna destinati ad attività private (studio,ecc) o come spazi per gli ospiti. Al piano primo, vi sono degli spazi soggiorno con locale pranzo- cucina e il servizio igienico principale, dotato di aperture. Al piano secondo, vi è la camera matrimoniale e la camera singola con relativo servizio igienico. Sopra il servizio igienico e lo spazio di distribuzione al piano si trova un piccolo soppalco ad uso deposito

Il progetto intende lavorare sulla base dell’edificio esistente, operando un insieme limitato di modifiche, in modo tale da restituire un’immagine unitaria e compositivamente equilibrata del manufatto













