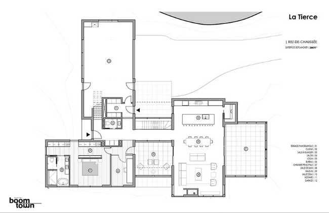
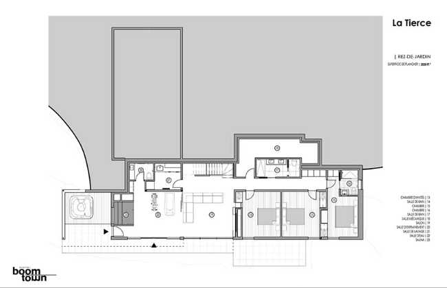
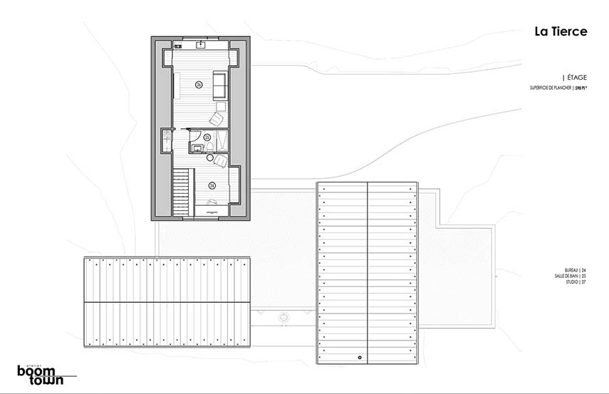
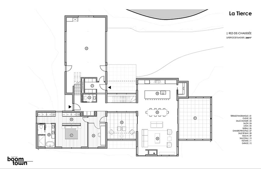
Tradition revisited through modern language
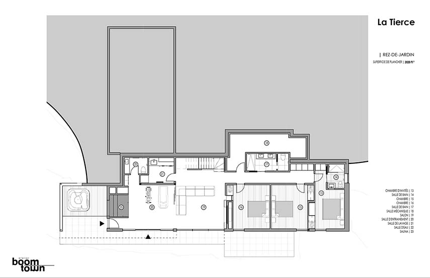
La Tierce is one of the architecture projects designed by Atelier Boom Town, characterized by three main volumes with double-pitched roofs and cladding in oxidized cedar boards; these house the central core of the residence, evoking rural constructions from a bygone era. This initial volumetric composition is connected by a series of spaces with flat roofs and visible laminated wood structure.























