Laura's Place è una struttura residenziale di sostegno per donne in gravidanza e madri sole. La struttura si pone come passo successivo nel processo di recupero, dopo aver affrontato vari programmi, per poter tornare ad una vita di tutti i giorni. La struttura esistente è composta da quattro unità, un seminterrato e un garage. Il progetto espande la capacità di Laura's Place aggiungendo due unità tramite un'ampliamento posizionato in modo strategico. L’urbanizzazione del sito consentiva cinque unità pertanto, la volumetria ottimale è stata raggiunta attraverso l'applicazione di una serie di bonus, che comprendevano l’ampliamento degli spazi esterni


Casa per accogliere negli Stati Uniti. Un ampliamento come un modulo abitativo sociale
Laura's Place è una struttura residenziale di sostegno per le famiglie che operava da diversi anni attraverso 4 unità abitative, lo studio Architecture Building Culture ha analizzato il luogo creando alter due unità abitative, dai massimo confort
- #America>
- #Stati Uniti>
- #Abitazione>
- #Ampliamento edificio>
- #Legno>
- #Architectures>
- #Ristrutturazione>

Fondamentale per la pianificazione della nuova struttura è stata l'ubicazione del nuovo edificio. L'analisi del sito ha mostrato che il lato nord del sito aveva il maggior potenziale di trasformazione. Inserendo il nuovo edificio in questa posizione, il progetto migliora l'accessibilità complessiva eliminando il grado elevato esistente e creando un cuore comune grazie ad un cortile adiacente alla sala comune

La sala comune e le aree esterne ampliate sono state aggiunte ristrutturando il garage esistente e fornendo nuove aree verdi e accessi condivisi, inoltre la sicurezza della struttura è stata migliorata attraverso una riprogettazione completa del sito che fornisce punti di accesso ben definiti per le singole unità, illuminazione e riquadri verdi riprogettati, dando una maggiore visibilità della struttura

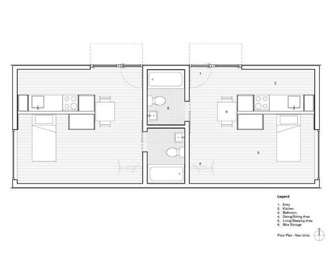
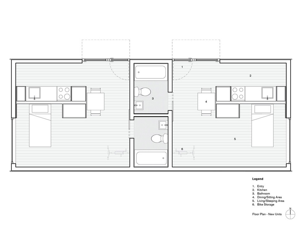
Le due nuove unità sono composte ciascuna da una piccola cucina, soggiorno, zona notte e bagno. Ogni unità è concepita come un singolo volume. Un lato del blocco crea la cucina e l'altro lato crea la zona giorno e notte. L'aggiunta di due unità ha fornito una nuova linea estetica per la struttura complessiva


 
                
















